Affitto Capannone Comun Nuovo | Chicercacasa.it
Capannone - Rif. 2683

7.500,0

Affitto Capannone Comun Nuovo

Via G.Marconi, Comun Nuovo

Descrizione

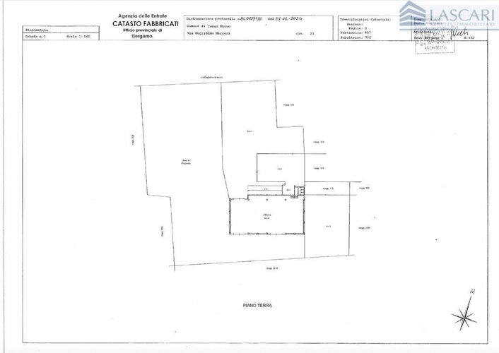
Immobile ideale per uso concessionaria auto - moto - camper. Zona semicentrale nelle immediate vicinanze alla s.p. 42 compendio immobiliare, con struttura in c.a. E mattoni a vista e prefabbricato, completamente recintato attualmente utilizzato per attività di vendita di macchinari e attrezzature per giardinaggio, composto da: laboratorio esposizione con sottostante magazzino, adiacente a capannone uso officina. Dotato di ampia area esterna recintata con doppio accesso carrale corrispondente alla seguente descrizione: laboratorio esposizione di mq. 284 h.mt. 3,20 con ampie vetrine e porticato, composto da ampio open space espositivo, due uffici, servizi con predisposizione spazio per montacarichi. al piano seminterrato magazzino di mq. 274 h.mt. 3,00 con comodo scivolo e accesso carrale. In adiacenza capannone uso officina con servizi di mq. 555 con altezza utile mt. 6,00, con servizi per il personale, oltre ad ampia tettoia. Gli immobili sono dotati di impianto elettrico a norma, impianto di riscaldamento con moduli robur, impianto aria, nell'officina impianto aspirazione fumi. Inoltre all'esterno è presente impianto di lavaggio con vasche di raccolta acque. Area esterna di pertinenza recintata uso parcheggio di mq 3.881. Canone di locazione senza iva.

 

Dettagli

Classe Energetica
F
IPE
813,67 kW/KWh/m²a
Mq
1113
Alt. sotto trave
-
Area Esterna
-
Licenza
-
Parcheggi priv.
-
Parcheggi pubb.
-
Importo Affitto
-
Incasso
-
Tipo Incasso
-
Rich. Valore
-
Locali
-
Tipo proprietà
Non specificato

Lascari Servizi Immobiliari

Email: [email protected] - Telefono: 035 234162

Indirizzo

Via A. Previtali, 20

Sito Web

Lascari Servizi Immobiliari

Orari di apertura

non presenti.

1ALTRIANNUNCISIMILI

7.500

Comun Nuovo

 

Immobile Comm...

IMMOBILE IDEALE PER USO CONCESSIONARIA AUTO - MOTO - CAMPER. Zona semicentrale nelle immediate vicinanze alla S.P. 42 compendio immobiliare,

mq. 1113 locali -

Lascari Servizi Immobilia…

chicercacasa
quilatrova