Affitto Capannone Grassobbio | Chicercacasa.it
Capannone - Rif. 2661

2.500,0

Affitto Capannone Grassobbio

Via Orio al Serio 5, Grassobbio

Descrizione

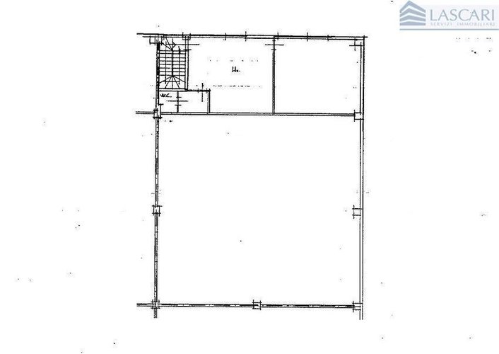
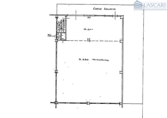
Posizione strategica per la vicinanza all'aeroporto e per l'ottimo collegamento alla viabilità principale. In contesto artigianale recintato si propone in locazione capannone di complessivi mq. 424 con comodo accesso carrale, altezza utile di mt. 6,30. l'immobile è in buono stato di manutenzione ed è appena stato rifatto il manto di copertura. Superficie capannone mq. 340 è dotato di bagno, impianto elettrico - luci, impianto di riscaldamento ad aria con moduli robur. Con ingresso indipendente, al piano impalcato, uffici con servizi di mq. 84 dotati di impianto di riscaldamento a metano e impianto di raffrescamento. L'immobile viene consegnato tinteggiato. Area esterna esclusiva di mq. 165.

 

Dettagli

Classe Energetica
A+
IPE
0 kW/mc
Mq
424
Alt. sotto trave
-
Area Esterna
-
Licenza
-
Parcheggi priv.
-
Parcheggi pubb.
-
Importo Affitto
-
Incasso
-
Tipo Incasso
-
Rich. Valore
-
Locali
-
Tipo proprietà
Non specificato

Lascari Servizi Immobiliari

Email: [email protected] - Telefono: 035 234162

Indirizzo

Via A. Previtali, 20

Sito Web

Lascari Servizi Immobiliari

Orari di apertura

non presenti.

0ALTRIANNUNCISIMILI

chicercacasa
quilatrova