Affitto Immobile Commerciale Como | Chicercacasa.it
Immobile Commerciale 5 locali - Rif. 136

1.200,0

Affitto Immobile Commerciale Como

indirizzo non presente, Como

Zona:

Camerlata

Descrizione

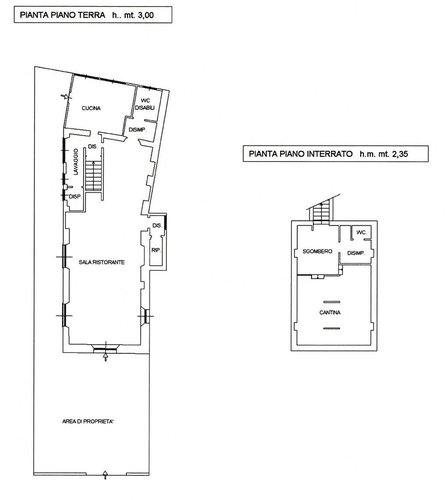
Camerlata a due passi dalla stazione fnm di via scalabrini affittiamo locale commerciale di ca 115 mq. Con annessa cantina di ca 60 mq. Ed area esterna di pertinenza di ca 100 mq. gia' libero il contratto di locazione verra' cosi' stipulato: 1° anno € 1.200,00 2° anno € 1.300,00 3° anno € 1.400,00 4°- 5° e 6° anno € 1.500,00

 

Dettagli

Classe Energetica
C
IPE
956,24 kW/KWh/m²a
Mq
115
Alt. sotto trave
-
Area Esterna
-
Licenza
-
Parcheggi priv.
-
Parcheggi pubb.
-
Importo Affitto
-
Incasso
-
Tipo Incasso
-
Rich. Valore
-
Locali
5
Tipo proprietà
Non specificato

Immobilfin s.a.s.

Email: [email protected] - Telefono: 031265315

Indirizzo

Como, Via Mentana, 4

Sito Web

Immobilfin s.a.s.

Orari di apertura

da lunedì a venerdì dalle ore 9:00 alle ore 13:00 e dalle ore 15:00 alle ore 19:00

41ALTRIANNUNCISIMILI

230.000

Como

 

Sagnino (14/25)

L'ampio appartamento di 5 locali in vendita si trova a Sagnino, precisamente in Via Giovanni Papini, in un contesto tranquillo e immerso nel

mq. 140 locali 5

Toscano Como Nord

200.000

Como

 

Como, Soluzio...

Como, Viale Innocenzo, in posizione strategica a pochi passi dalle mura e da qualsiasi servizi, in contesto dotato di servizio di portineria

mq. 95 locali 3

CorsoComo Srl

200.000

Como

 

Como, Soluzio...

Como, Viale Innocenzo, in posizione strategica a pochi passi dalle mura e da qualsiasi servizi, in contesto dotato di servizio di portineria

mq. 95 locali 3

CorsoComo Srl

189.000

Como

Como Sole

Trilocale

Classe energetica: E - EPgl,nren: 172,53 kWh/m² - Proponiamo in vendita un luminoso trilocale in ottime condizioni, situato in una zona defi

mq. 95 locali 3

Immobiliare Severini

260.000

Como

Como Borghi

(6.26) Triloc...

Zona Borghi. A pochi passi dalla città murata e dalla stazione, proponiamo ampio Trilocale in vendita. L'immobile si trova al primo piano di

mq. 97 locali 3

Toscano Como Borghi

180.000

Como

Sagnino

Sagnino, In V...

In zona ben servita proponiamo ampio e luminoso trilocale composto da ingresso con armadiature a muro, doppio salotto con accesso al terra

mq. 120 locali 3

CorsoComo Srl

205.000

Como

 

Sagnino 23/25

Nella tranquilla zona residenziale di Sagnino, in Via Grazia Deledda, sorge un appartamento luminoso al piano rialzato, inserito in un conte

mq. 100 locali 3

Toscano Como Nord

235.000

Como

Borghi

Como Borghi, ...

In zona centrale e comoda con ogni mezzo e servizio, proponiamo ampio appartamento di tre locali sito al primo piano con ascensore composto

mq. 120 locali 3

CorsoComo Srl

chicercacasa
quilatrova