Affitto Stabile Bergamo | Chicercacasa.it
Stabile - Rif. 2647

Trattativa Riservata

Affitto Stabile Bergamo

Via Zanica 58, Bergamo

Descrizione

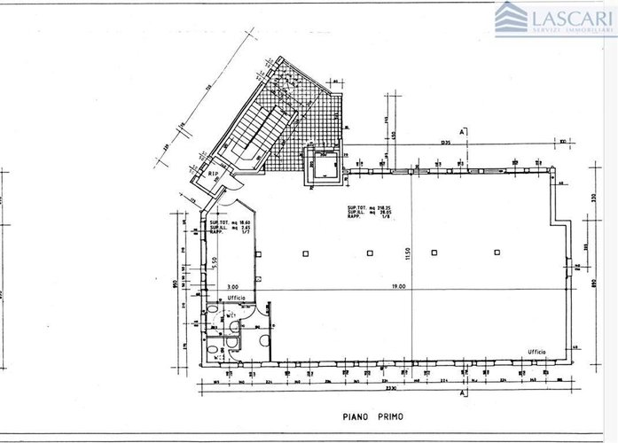
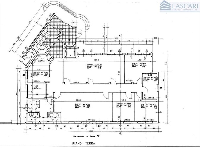
Zona interessante per il rapido collegamento all'autostrada e all'aeroporto. Palazzina uffici indipendente disposta su due livelli collegati da scale e ascensore di complessivi mq. 636.ogni piano è dotato di un gruppo servizi anche uso disabile, dotazione di pavimento galleggiante, impianto elettrico a norma con corpi illuminanti, impianto di riscaldamento autonomo a metano, impianto d'aria condizionata, rete dati con fibra e impianto d'allarme. Nell'area cortilizia recintata sono inclusi 20 posti auto. Canone di locazione interessante.

 

Dettagli

Classe Energetica
D
IPE
415,95 kW/KWh/m²a
Mq
636
Alt. sotto trave
-
Area Esterna
-
Licenza
-
Parcheggi priv.
-
Parcheggi pubb.
-
Importo Affitto
-
Incasso
-
Tipo Incasso
-
Rich. Valore
-
Locali
-
Tipo proprietà
Non specificato

Lascari Servizi Immobiliari

Email: [email protected] - Telefono: 035 234162

Indirizzo

Via A. Previtali, 20

Sito Web

Lascari Servizi Immobiliari

Orari di apertura

non presenti.

12ALTRIANNUNCISIMILI

5.400

Bergamo

 

Ufficio - Rif...

Zona interessante per il rapido collegamento all'Autostrada e all'Aeroporto. Palazzina uffici indipendente disposta su due livelli collegati

mq. 636 locali -

Lascari Servizi Immobilia…

5.833

Bergamo

Borgo Palazzo, Centro, S…

Bergamo Centr...

In signorile stabile situato nel centro di Bergamo, proponiamo in locazione ampio ufficio di rappresentanza di 500 mq situato al piano terra

mq. 500 locali 6

Royal Immobili & Investim…

4.500

Bergamo

Corridoni, Redona

Grande Uffici...

In posizione assolutamente strategica per il collegamento con tutte le principali arterie bergamasche, affittiamo ufficio di 600 mq fraziona

mq. 600 locali 6

Trecentosessantagradi Liv…

4.600

Bergamo

Borgo Palazzo, Centro, S…

Uffici Ampia ...

Bergamo , per chi cerca l'immagine e la qualità , oppOrtunità in zona centrale a pochi minuti dal centro città e via Tasso , in contesto com

mq. 403 locali 6

5.200

Bergamo

Borgo Palazzo, Centro, S…

Ufficio 500mq...

Ufficio 500mq di rappresentanza, Bergamo Centro RGA Immobilare propone a Bergamo in zona centrale un ufficio di 500mq posto al piano alto di

mq. 500 locali 6

RGA Immobiliare

5.420

Bergamo

Borgo Palazzo, Centro, S…

Negozio In Af...

Bergamo centrale, in via di forte passaggio pedonale e veicolare proponiamo in locazione ampio spazio commerciale di circa 850mq su un unico

mq. 850 locali 1

Coldwell Banker Remondini…

5.420

Bergamo

Borgo Palazzo, Centro, S…

Negozio In Af...

Bergamo centrale, in via di forte passaggio pedonale e veicolare proponiamo in locazione ampio spazio commerciale di circa 850mq su un unico

mq. 850 locali 1

Coldwell Banker Remondini…

5.000

Bergamo

Borgo Palazzo, Centro, S…

Negozio / Uff...

Via Camozzi affittiamo spazio commerciale di 450 mq attualmente composto da vari locali configurati a mezzo pregiate pareti mobili ma eventu

mq. 450 locali 6

Trecentosessantagradi Liv…

chicercacasa
quilatrova