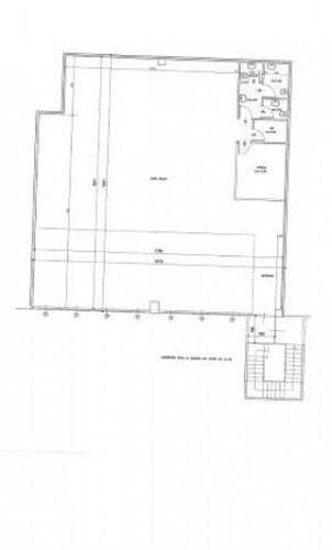
Gorle affittiamo ufficio di circa mq 330, posto al piano primo, riscaldamento autonomo con pannelli fotovoltaici, composto da ampio open - space suddivisibile in vari uffici, 3 bagni di cui 1 bagno per disabile. Canone annuo € 30.000,00. Pagamento 3 mesi di affitto anticipato + 3 mesi di cauzione. Spese condominiali annue: € 800,00 classe energetica: e - 54,00 kwh/m3a la presente scheda non può essere divulgata ad altre persone ed è soggetta alla legge relativa alla riservatezza personale. - inoltre il presente documento non costituisce elemento contrattuale. (www.immobiliare-vanoni.it) cod. 1.954 (www.immobiliarevanoni.it) cod. 1.954 potete trovare innumerevoli altre offerte sul nostri siti internet oppure potete fissare un appuntamento per venirci a trovare in agenzia. Gli uffici della vanoni immobiliare sono a bergamo via antonio locatelli n° 36 - telefono 035211961 - email [email protected]; il nostro personale qualificato ed esperto vi aiuterà a trovare la soluzione adatta alle vostre esigenze! vanoni immobiliare aderisce al sistema mls fiaip