Vendita Appartamento Gorlago | Chicercacasa.it
quadrilocali nuovi

Trattativa Riservata

Vendita Appartamento Gorlago

papa giovanni XXIII, Gorlago

Descrizione

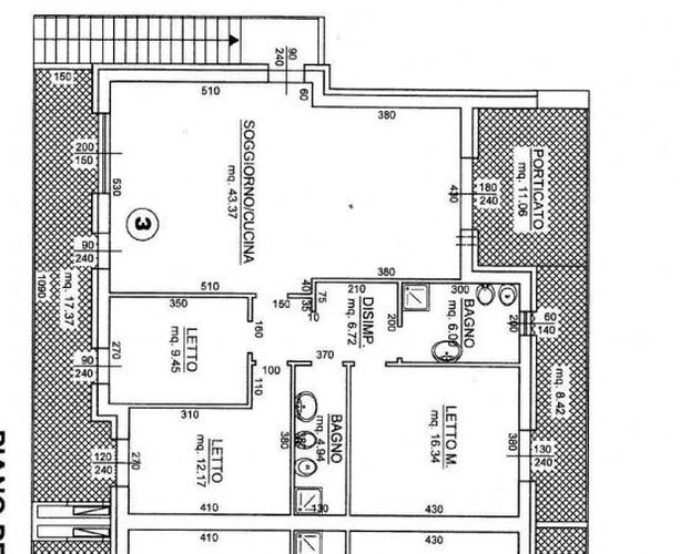
Gorlago prossima realizzazione di 4 appartamenti in villa con valore di progetto classe a4 29,9. La realizzazione è concepita per ottenere un alto risparmio energetico, utilizzando una soluzione di riscaldamento con sistema ibrido caldaia mista pompa di calore coadiuvata dai pannelli fotovoltaici, serramenti a basso emissivo oltre ad un adeguato isolamento perimetrale della sruttura. Dotata di riscaldamento a pavimento, sanitari sospesi, predisposizione clima ed antifurto, finiture e spazi da personalizzare. ; quadrilocale al piano primo composto da: soggiorno pranzo di oltre 40 mq, disimpegno, 3 camere da letto, bagno padronale, bagno, porticato; al piano terra giardino ; al piano interrato, ripostiglio, box doppio in larghezza (v.p a4 29,9) t4479i € 262.000 studio co.med. S.r.l.

 

Dettagli

Tipologia
Appartamento
Mq
0
Soffitta
No
Bagni
0
Balconi
0
Box
0
Arredamento
Non disponibile
Spese cond.
-
Num.posti auto
0
Piano
0
Camere da letto
0
Giardino
Si, Condominiale
Ascensore
No
Riscaldamento
Non specificato
Locali
-
Tipo proprietà
Intera proprietà
Stato
Ristrutturato
Vendita/affitto
Vendita
Terrazzo
No
Cucina
Non specificato
N.Piani Edificio
0
Portineria
No
Classe Energetica
G
IPE
250 kW/mc

STUDIO CO.MED.

Email: [email protected] - Telefono: 035582040

Indirizzo

Albano Sant'Alessandro, Via Garibaldi

Fax

035582160

Sito Web

STUDIO CO.MED.

Studio CO.MED. Immobiliare è una realtà operante nel settore immobiliare da oltre 15 anni nella bergamasca. Studio CO.MED. Immobiliare è in grado di offrirvi una consulenza completa e professionale,riguardante tutte le fasi della vendita o dell'acquisto, che permette di risparmiare tempo e assicura la perfetta riuscita delle transazioni. Studio CO.MED. Immobiliare si serve delle più avanzate tecniche pubblicitarie, partendo dalla pubblicazione delle offerte su tutte le testate locali, fino ad arrivare alla più innovativa tecnologia Internet che ci permette di gestire l'intera Banca Dati in nostro possesso e renderla disponibile On Line con aggiornamenti giornalieri. Questa gestione vi permette di trovare il vostro immobile direttamente su Internet già il giorno successivo alla sua segnalazione. L'obiettivo di Studio CO.MED. Immobiliare è garantire al Cliente la massima qualità, competenza, esperienza e affidabilità.

Orari di apertura

lun/ven 9.00 - 12.30 e 15.00 - 19.30

11ALTRIANNUNCISIMILI

Tratt. Ris.

Gorlago

 

Quadrilocali ...

GORLAGO prossima realizzazione di 4 appartamenti in villa con valore di progetto classe A4 29,9. La realizzazione è concepita per ottenere u

mq. - locali -

STUDIO CO.MED.

262.000

Gorlago

 

Quadrilocale

GORLAGO nuova realizzazione in villa quadrifamiliare proponiamo quadrilocale al piano primo ed ultimo di testa libero su 3 lati. La realizza

mq. 168 locali 4

STUDIO CO.MED.

81.000

Gorlago

 

Bilocale

In delizioso contesto circondato da colline verdeggianti e tranquillità proponiamo in palazzina di recente realizzazione uno spazioso biloca

mq. 65 locali 2

POLONI IMMOBILIARE DI POL…

320.000

Gorlago

 

Villa Singola

Nella zona residenziale più bella e tranquilla del paese, soleggiatissima villa singola libera su tutti e quattro i lati e posta in strada a

mq. 120 locali 5

SG Immobiliare

130.000

Gorlago

 

Trilocale

GORLAGO ampio trilocale di oltre 140 mq al piano secondo ed ultimo, distribuito tutto su piano unico, composto da: ingresso, soggiorno, cuci

mq. 163 locali 3

STUDIO CO.MED.

139.000

Gorlago

 

Trilocale

Gorlago in tranquilla posizone residenziale direzione Trescore Balneario, abbiamo ampio trilocale di circa 90 mq + ampio giardino in parte p

mq. 123 locali 3

STUDIO CO.MED.

290.000

Gorlago

 

Quadrilocale ...

Adiacenze a 2 km.affare! in bellissima zona centrale ben servita tranquilla (a due passi dal centro da scuole, negozi e municipio) in cascin

mq. 125 locali 4

Geocasa di Cornago geom. …

395.000

Gorlago

 

Gorlago, Vill...

A Gorlago, in zona residenziale tranquilla, proponiamo in vendita villa singola di 180 mq su piano unico composta al piano rialzato da ingre

mq. 180 locali 5

POLONI IMMOBILIARE DI POL…

chicercacasa
quilatrova