Vendita Attico Bergamo | Chicercacasa.it
ATTICO - QUADRILOCALE con TERRAZZI VIVIBILI

495.000

Vendita Attico Bergamo

via Per Grumello, 43, Bergamo

Zona:

Canovine, Colognola

Descrizione

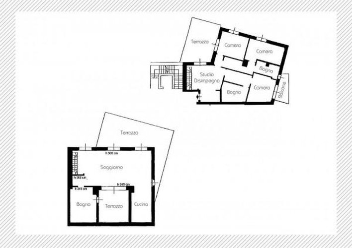
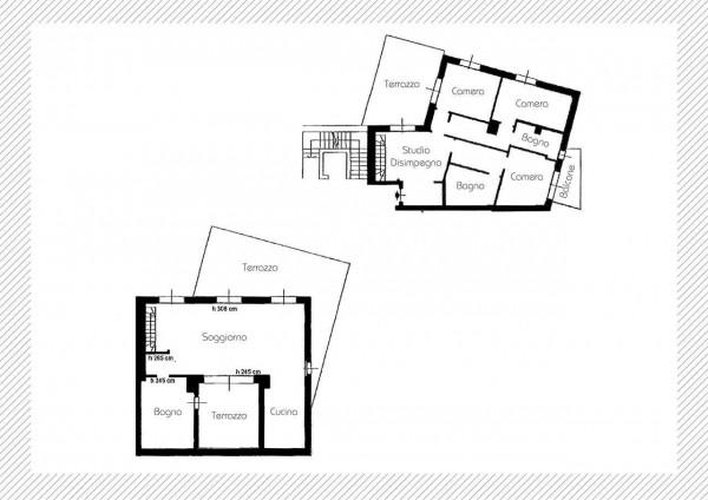
Bergamo, periferia, a 2 passi dal nuovo ospedale papa giovanni xxiii° e dal villaggio degli sposi, nelle immediate vicinanze dal centro città, in classe energetica "a", vendiamo splendido ed ampio attico - quadrilocale (in duplex) completo di terrazzi vivibili (con vista città alta), cantina e box doppio in larghezza. Composizione: ampio disimpegno d'ingresso, terrazzo vivibile di mq 25, tre camere (di cui 2 matrimoniali), cabina armadio, due bagni e balcone di mq 8; al piano superiore, collegato mediante comoda scala interna, troviamo la zona giorno composta da doppio soggiorno, cucina a vista, bagno, due ripostigli e due terrazzi vivibili (uno di mq 40 ed uno di mq 20. Completano la proprietà al piano interrato la cantina ed il box doppio in larghezza. Accessori: riscaldamento a pavimento sanitari sospesi impianto di climatizzazione impianto di allarme immobile in ottime condizioni (praticamente nuovo), libero su 3 lati, pronto da abitare. Lo stabile è servito dal tele-riscaldamento n.b.: l'indirizzo è il luogo dell'incontro e non dell'abitazione.

 

Dettagli

Tipologia
Attico
Mq
230
Soffitta
No
Bagni
3
Balconi
1
Box
1
Arredamento
Non disponibile
Spese cond.
-
Num.posti auto
2
Piano
3
Camere da letto
3
Giardino
Si, Condominiale
Ascensore
Si
Riscaldamento
Centralizzato
Locali
5
Tipo proprietà
Intera proprietà
Stato
Nuovo
Vendita/affitto
Vendita
Terrazzo
Si
Cucina
Angolo cottura
N.Piani Edificio
3
Portineria
No
Classe Energetica
A
IPE
26,71 kW/mq

Pianeta Immobiliare

Email: [email protected] - Telefono: +390354128393

Indirizzo

Ponteranica, Via Ramera

Sito Web

Pianeta Immobiliare

La nostra agenzia tratta la compravendita e la locazione di immobili prevalentemente residenziali. Le zone di nostra competenza sono la città di Bergamo, i paesi limitrofi " nel raggio di 10 km" e tutta la Valle Imagna.

Orari di apertura

lun. - ven. 9-12.30 15.00-19.00 sab. (su appuntamento) 9.00 - 12.00

303ALTRIANNUNCISIMILI

495.000

Bergamo

Canovine, Colognola

Quadrilocale ...

BERGAMO, periferia, a 2 passi dal nuovo Ospedale Papa Giovanni XXIII° e dal Villaggio degli Sposi, nelle immediate vicinanze dal centro citt

mq. 230 locali 5

Pianeta Immobiliare

687.000

Bergamo

Borgo Palazzo, Centro, S…

Quadrilocale

CITY IN C2f In Via Ghislandi, nella vivace cornice di Piazza S. Anna, si inserisce un'architettura all'avanguardia, un progetto moderno ed e

mq. 177 locali 4

EYNARD IMMOBILIARE srl

766.000

Bergamo

Borgo Palazzo, Centro, S…

Trilocale

CITY IN C3g In Via Ghislandi, nella vivace cornice di Piazza S. Anna, si inserisce un'architettura all'avanguardia, un progetto moderno ed e

mq. 188 locali 3

EYNARD IMMOBILIARE srl

803.000

Bergamo

 

Quadrilocale

CITY IN C3H In Via Ghislandi, nella vivace cornice di Piazza S. Anna, si inserisce un'architettura all'avanguardia, un progetto moderno ed e

mq. 197 locali 4

EYNARD IMMOBILIARE srl

543.000

Bergamo

Borgo Palazzo, Centro, S…

City In B3f T...

City In B3F In Via Ghislandi, nella vivace cornice di Piazza S. Anna, si inserisce un'architettura all'avanguardia, un progetto moderno ed e

mq. 132 locali 3

EYNARD IMMOBILIARE srl

543.000

Bergamo

Borgo Palazzo, Centro, S…

Trilocale

City In B3F In Via Ghislandi, nella vivace cornice di Piazza S. Anna, si inserisce un'architettura all'avanguardia, un progetto moderno ed e

mq. 132 locali 3

EYNARD IMMOBILIARE srl

599.000

Bergamo

Borgo Palazzo, Centro, S…

Quadrilocale ...

Bergamo centrale e tranquillo , in contesto nuovo e gradevole ambiente condominiale , ubicazione comoda per il centro città e servizi a pied

mq. 192 locali 4

596.000

Bergamo

Borgo Palazzo, Centro, S…

Quadrilocale

CITY IN C1b Quadrilocale In Via Ghislandi, nella vivace cornice di Piazza S. Anna, si inserisce un'architettura all'avanguardia, un progetto

mq. 172 locali 4

EYNARD IMMOBILIARE srl

chicercacasa
quilatrova