Vendita Attico Paladina | Chicercacasa.it
FRESCA RISTRUTTURAZIONE

420.000

Vendita Attico Paladina

indirizzo non presente, Paladina

Descrizione

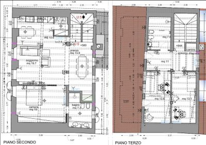
Quadrilocale piano secondo + mansarda di nuova costruzione, libero su tre lati in zona centrale del paese. Descrizione dell’immobile: -ampio e luminoso soggiorno. -sala da pranzo -cucina angolo cottura. -bagno / lavanderia -disimpegno -camera matrimoniale con bagno privato e progettazione box doccia doppio/basca. Piano mansardato: due camere, bagno completo, disimpegno. -spese condominiale? minime.. Compresso nel prezzo box. L’appartamento si trova al piano secondo e terzo di un contesto di solo 5 unità abitative. L’appartamento è stato realizzato in classe a4 con materiali e finiture di alto pregio, studiati nei minimi dettagli adatti per ogni stile di vita. Sono composti da impianti tecnologici sicuri e all’avanguardia, nel pieno rispetto delle norme di risparmio energetico e tutela dell’ambiente (riscaldamento a pavimento con pompa di calore indipendente, raffrescamento ad aria, persiane in alluminio, serramenti triplo vetro, ventilazione meccanica controllata, impianto fotovoltaico). Per finiture e personalizzazioni puoi chiamarci senza impegno

 

Dettagli

Tipologia
Attico
Mq
125
Soffitta
Non specificato
Bagni
0
Balconi
0
Box
-
Arredamento
Non presente
Spese cond.
-
Num.posti auto
0
Piano
0
Camere da letto
0
Giardino
Si, Privato
Ascensore
Non specificato
Riscaldamento
Non specificato
Locali
-
Tipo proprietà
Non specificato
Stato
Non specificato
Vendita/affitto
Vendita
Terrazzo
No
Cucina
Non specificato
N.Piani Edificio
0
Portineria
Si
Classe Energetica
A+
IPE
0 kW/mc

A.g.m. Immobiliare s.r.l.

Email: [email protected] - Telefono: 035 3059189

Indirizzo

Curno, Via A.Meucci 1 24035 Curno BG

Sito Web

A.g.m. Immobiliare s.r.l.

La società di intermediazione AGM Immobiliare s.r.l nasce per rispondere all’esigenza di tutti coloro che vogliono investire, acquistare, vendere o mettere a reddito i propri immobili in piena sicurezza. Un nuovo progetto, un nuovo nome, un nuovo marchio, una nuova realtà, ma con interpreti con alle spalle oltre 40 anni di esperienza in ambito immobiliare; pronti a mettere la propria conoscenza, professionalità, dedizione al lavoro a vostra disposizione. La nostra struttura offre servizi di consulenza tecnica, legale, edile/catastale e notarile, mutui e finanziamenti, affiancando la clientela nella gestione di ogni trattativa. L'agenzia AGM Immobiliare è stata creata per soddisfare le esigenze di investimenti di alto livello, facendo da consulente ai clienti interessati sia alla vendita che all’acquisto di singole unità immobiliari; inoltre, siamo in grado di offrire la gestione di interi patrimoni immobiliari a reddito. Siamo una società di intermediazione immobiliare che opera a Bergamo e nelle zone limitrofe con grande professionalità e trasparenza. Mettiamo tutta la nostra esperienza e conoscenza del mercato immobiliare per soddisfare anche le richieste dei clienti più esigenti. Siamo specializzati nelle seguenti tipologie di offerte Immobili residenziali Negozi - Locali commerciali Magazzini - Depositi Uffici Terreni Nuove costruzioni

Orari di apertura

da lunedì a sabato 8.30 - 19.00

0ALTRIANNUNCISIMILI

chicercacasa
quilatrova