Vendita Bilocale Sesto San Giovanni | Chicercacasa.it
Grazioso bilocale

141.500

Vendita Bilocale Sesto San Giovanni

via San Maurizio al Lambro, Sesto San Giovanni

Descrizione

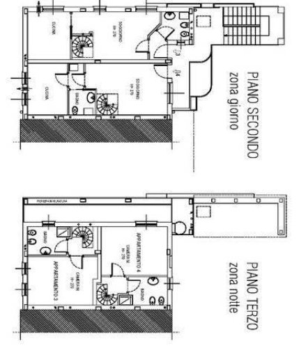
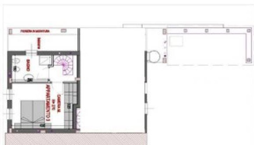
Nuova ristrutturazione a sesto san giovanni in contesto residenziale nelle vicinanze del centro commerciale il vulcano e a pochi minuti dalla metropolitana e raccordo a4 e tangenziale nord. Proponiamo un'ampia soluzione di 2 locali con cucina abitabile, doppi servizi e rifinito con materiali di ottima qualità in una palazzina di sole 5 unità abitative senza spese condominiali. Termo autonomo in pronta consegna. Mutuo al 100% -prezzo ribassato per ulteriori informazioni o per fissare un'appuntamento chiama al 3935356875 siete interessati a questa bella soluzione ma dovete vendere la vostra casa ? non temete e affidate a mani esperte la vendita del vostro immobile ,il nostro responsabile con esperienza ventennale nella vendita di immobili verrà a valutare la vostra casa e vi consiglierà come vedere bene e alle migliori condizioni di mercato , grazie alla nostra banca dati in continuo aggiornamento abbiamo sicuramente clienti potenzialmente interessati proprio alla vostra casa . Cambiare casa spesso significa cercare uno spazio confortevole dove consolidare la propria famiglia e realizzare i propri sogni ,oppure significa cambiare il modo di vivere la casa , elleci immobiliare è pronta ad aiutarvi a trovare le soluzioni ideali per voi

 

Dettagli

Tipologia
Appartamento
Mq
72
Soffitta
Non specificato
Bagni
2
Balconi
1
Box
0
Arredamento
Non presente
Spese cond.
-
Num.posti auto
0
Piano
2
Camere da letto
1
Giardino
Si, Privato
Ascensore
Non specificato
Riscaldamento
Autonomo
Locali
2
Tipo proprietà
Non specificato
Stato
Non specificato
Vendita/affitto
Vendita
Terrazzo
No
Cucina
Non specificato
N.Piani Edificio
4
Portineria
Si
Classe Energetica
F
IPE
175,0 kW/mc

Email: - Telefono:

Indirizzo

Orari di apertura

non presenti.

3ALTRIANNUNCISIMILI

chicercacasa
quilatrova