Vendita Capannone Presezzo | Chicercacasa.it
Capannone con prestigiosi uffici di rappresentanza

3.600.000,0

Vendita Capannone Presezzo

via G. M. Scotti, Presezzo

Descrizione

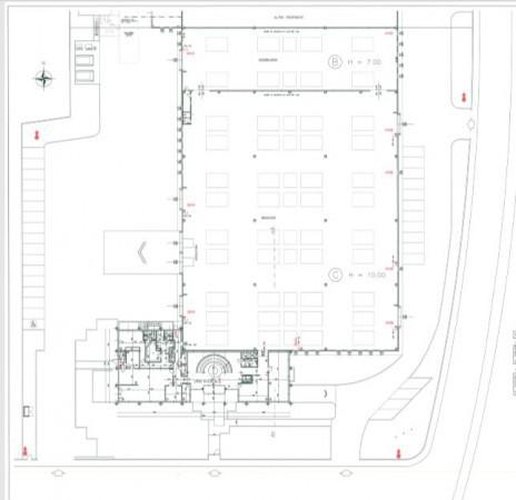
Rga immobiliare propone un meraviglioso capannone di recentissima costruzione in zona industriale. L’immobile è di 5.000mq su un’area di 10.000mq con un giardino verdeggiante e con un grande piazzale. Il piazzale esterno è totalmente asfaltato e dotato di antifurto. Il capannone è suddiviso in 2 zone: prestigiosi uffici e ampio magazzino. Gli uffici sono ripartiti su 2 livelli e rifiniti con materiali di alto pregio. Il piano terra, di 450mq, è così composto: elegante e luminosa reception, sala riunione con tavolo in cristallo, mensa con tutte le attrezzature e diversi uffici come si può vedere dalle foto. Al piano superiore si accede da una meravigliosa e archittetonicamente studiata scala oppure si può usufruire di un’ascensore. Ci sono altri 450mq di uffici ben arredati e ben strutturati al piano superiore. Tutti gli arredi sono compresi nel prezzo. Il magazzino è di 4.000mq con 2 baie di carico e 5 portoni che danno la possibilità di accedere internamente anche con un bilico.

 

Dettagli

Classe Energetica
D
IPE
20,0 kW/mc
Mq
5424
Alt. sotto trave
0.00
Area Esterna
0
Licenza
-
Parcheggi priv.
-
Parcheggi pubb.
si
Importo Affitto
0
Incasso
-
Tipo Incasso
-
Rich. Valore
-
Locali
6
Tipo proprietà
Intera proprietà

RGA Immobiliare

Email: [email protected] - Telefono: 3200823705

Indirizzo

Via A. Pacinotti

Sito Web

RGA Immobiliare

Orari di apertura

non presenti.

209ALTRIANNUNCISIMILI

750.000

Bergamo

Longuelo, San Paolo

Nuova Palazzi...

RGA Immobiliare propone un nuovo e moderno edificio in casa clima classe A di prossima realizzazione . La palazzina, ubicata in una delle ar

mq. 191 locali 4

RGA Immobiliare

650.000

Bergamo

Monterosso, Valtesse

Nuova Palazzi...

RGA Immobiliare propone un nuovo e moderno edificio in casa clima classe A di prossima realizzazione . La palazzina, ubicata in una delle ar

mq. 220 locali 5

RGA Immobiliare

650.000

Bergamo

Monterosso, Valtesse

Nuova Palazzi...

RGA Immobiliare propone un nuovo e moderno edificio in casa clima classe A di prossima realizzazione . La palazzina, ubicata in una delle ar

mq. 220 locali 5

RGA Immobiliare

950.000

Bergamo

Monterosso, Valtesse

Nuova Palazzi...

RGA Immobiliare propone un nuovo e moderno edificio in casa clima classe A di prossima realizzazione . La palazzina, ubicata in una delle ar

mq. 214 locali 5

RGA Immobiliare

950.000

Bergamo

Monterosso, Valtesse

Nuova Palazzi...

RGA Immobiliare propone un nuovo e moderno edificio in casa clima classe A di prossima realizzazione . La palazzina, ubicata in una delle ar

mq. 214 locali 5

RGA Immobiliare

950.000

Bergamo

Borgo Palazzo, Centro, S…

Quadrilocale ...

RGA Immobiliare propone nuovo e moderno edificio in classe A, di grande pregio architettonico, situato in una delle aree tra le piu prestigi

mq. 206 locali 4

RGA Immobiliare

1.050.000

Bergamo

Borgo Palazzo, Centro, S…

Quadrilocale ...

RGA Immobiliare propone nuovo e moderno edificio in classe A, di grande pregio architettonico, situato in una delle aree tra le piu prestigi

mq. 212 locali 4

RGA Immobiliare

950.000

Bergamo

Borgo Palazzo, Centro, S…

Quadrilocale ...

RGA Immobiliare propone nuovo e moderno edificio in classe A, di grande pregio architettonico, situato in una delle aree tra le piu prestigi

mq. 212 locali 4

RGA Immobiliare

chicercacasa
quilatrova