Vendita Capannone Urgnano | Chicercacasa.it
Capannone - Rif. 2291

1.000.000,0

Vendita Capannone Urgnano

Via Spirano 284, Urgnano

Descrizione

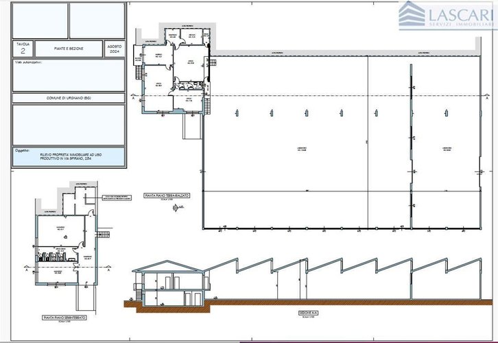
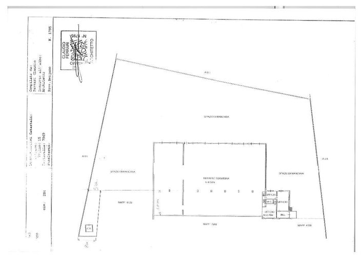
A pochi passi dalla strada prov. Francesca con rapido collegamento alla viabilità principale, in lotto recintato di mq. 5.297 capannone produttivo con altezza utile di mt. 4,50, annesso corpo uffici e servizi disposto su 2 livelli. Superficie coperta capannone mq. 1.434, uffici con piano rialzato di mq. 156 e servizi, spogliatoi e locali accessori al piano seminterrato di mq. 156. Area esterna mq. 3.707 di cui mq. 1.520 asfaltata. Cabina elettrica di trasformazione 160 kwh. Ulteriore possibilità edificatoria di mc. 914 per una slp massima di mq. 2.178. Immobile intestato a privati. Prezzo di vendita trattabile.

 

Dettagli

Classe Energetica
F
IPE
424,94 kW/KWh/m²a
Mq
1745
Alt. sotto trave
-
Area Esterna
-
Licenza
-
Parcheggi priv.
-
Parcheggi pubb.
-
Importo Affitto
-
Incasso
-
Tipo Incasso
-
Rich. Valore
-
Locali
-
Tipo proprietà
Non specificato

Lascari Servizi Immobiliari

Email: [email protected] - Telefono: 035 234162

Indirizzo

Via A. Previtali, 20

Sito Web

Lascari Servizi Immobiliari

Orari di apertura

non presenti.

0ALTRIANNUNCISIMILI

chicercacasa
quilatrova