Vendita Immobile Commerciale Como | Chicercacasa.it
Immobile Commerciale 4 locali - Rif. 278

290.000,0

Vendita Immobile Commerciale Como

indirizzo non presente, Como

Zona:

Camerlata

Descrizione

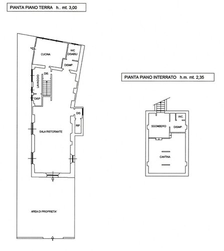
Camerlata in casa bifamiliare accanto alla stazione ferroviaria di via scalabrini, al piano terreno (ex ristorante) ma idoneo anche per altre attivita' (115 mq.): salone, cucina, bagno e disimpegno. piano seminterrato: grande cantina di 60 mq., sgombero e bagno. area esterna di proprieta' ottime finiture tetto e facciate appena rifatti il prezzo e' trattabile

 

Dettagli

Classe Energetica
C
IPE
956,24 kW/KWh/m²a
Mq
175
Alt. sotto trave
-
Area Esterna
-
Licenza
-
Parcheggi priv.
-
Parcheggi pubb.
-
Importo Affitto
-
Incasso
-
Tipo Incasso
-
Rich. Valore
-
Locali
4
Tipo proprietà
Non specificato

Immobilfin s.a.s.

Email: [email protected] - Telefono: 031265315

Indirizzo

Como, Via Mentana, 4

Sito Web

Immobilfin s.a.s.

Orari di apertura

da lunedì a venerdì dalle ore 9:00 alle ore 13:00 e dalle ore 15:00 alle ore 19:00

0ALTRIANNUNCISIMILI

chicercacasa
quilatrova