Vendita Locale Commerciale Lecco | Chicercacasa.it
Locale Commerciale

105.000,0

Vendita Locale Commerciale Lecco

Via Papa Giovanni XXIII, Lecco

Descrizione

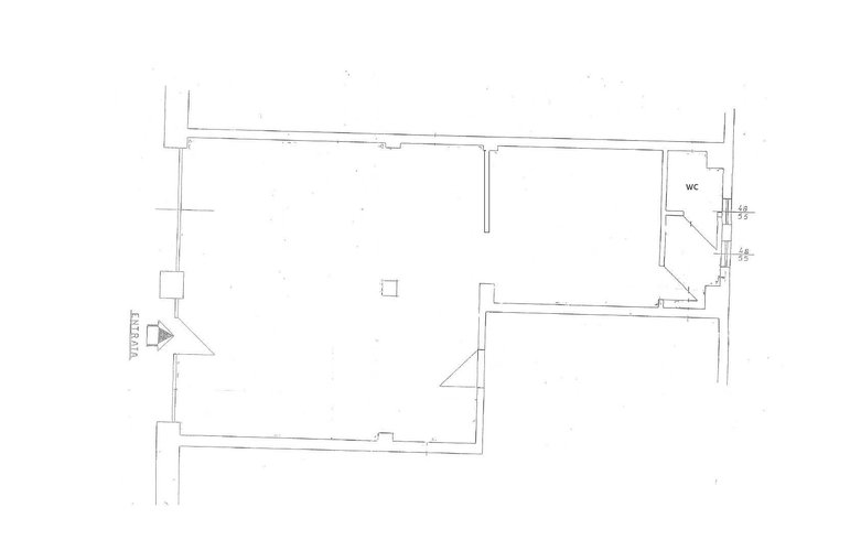
Classe energetica: e - lecco - castello, in posizione di forte passaggio, proponiamo negozio con 2 vetrine fronte strada, composto da due locali oltre bagno per una superficie totale di circa 60 mq commerciali, ideale per un'attività di vendita o studio professionale. Il negozio è privo di canna fumaria quindi non adatto per un'attività che necessita dello scarico dei fumi (esempio: pizzeria, rosticceria, panificio). Subito disponibile! questa descrizione ha valore puramente indicativo e non costituisce elemento contrattuale. Per info: edilcasa lecco via sassi 40 – tel. 0341/353096 - potete contattarci anche tramite "whatsapp" inserendo il n. 0341353096 nei vostri contatti! email: [email protected] – www.edilcasalecco.it<br><br>l'ufficio edilcasa si trova a lecco in via s. Sassi, 40 – angolo via cattaneo (centro città, nelle vicinanze della stazione fs), è aperto dal lunedì al venerdì negli orari 9:00 – 12:30 e 14:30 – 19:30, il sabato dalle 9:00 alle 12:30. Professionalità, serietà, dinamicità e grande conoscenza del territorio sono la base dell'attività dell’agenzia edilcasa di lecco, con un costante investimento nei migliori mezzi pubblicitari disponibili oggi nel settore immobiliare.

 

Dettagli

Classe Energetica
E
IPE
140 kW/mc
Mq
60
Alt. sotto trave
-
Area Esterna
-
Licenza
-
Parcheggi priv.
-
Parcheggi pubb.
-
Importo Affitto
-
Incasso
-
Tipo Incasso
-
Rich. Valore
-
Locali
-
Tipo proprietà
Non specificato

EDILCASA Immobiliare

Email: [email protected] - Telefono: 0341353096

Indirizzo

via S.Sassi 40

Sito Web

EDILCASA Immobiliare

Orari di apertura

non presenti.

0ALTRIANNUNCISIMILI

125.000

Lecco

Pescarenico

Vendita, Lecc...

Vendita, Lecco Pescarenico, in palazzina storica, trilocale sito al 3 piano senza ascensore, con stupenda vista lago. L'appartamento è compo

mq. 72 locali 3

My Place Italy

125.000

Lecco

Pescarenico

Vendita, Lecc...

Vendita, Lecco Pescarenico, in palazzina storica, trilocale sito al 3 piano senza ascensore, con stupenda vista lago. L'appartamento è compo

mq. 72 locali 3

My Place Italy

125.000

Lecco

Pescarenico

Vendita, Lecc...

Vendita, Lecco Pescarenico, in palazzina storica, trilocale sito al 3 piano senza ascensore, con stupenda vista lago. L'appartamento è compo

mq. 72 locali 3

My Place Italy

138.000

Lecco

Maggianico

Appartamento ...

Lecco, zona Maggianico, proponiamo in vendita un ampio e luminoso bilocale di 65 mq. Posto al piano terra all'interno di un contesto di cort

mq. 65 locali 2

Agenzia Immobiliare Metro…

120.000

Lecco

Zona Turati

Lecco (Lc), Z...

Lecco, zona Viale Turati, in posizione tranquilla, proponiamo in vendita un bel bilocale di 70 mq parzialmente arredato. L'immobile si pres

mq. 70 locali 2

Agenzia Immobiliare Metro…

159.000

Lecco

Olate

Lecco Olate A...

Lecco zona Olate appartamento ristrutturato a nuovo, posto al piano rialzato composto da ingresso, soggiorno, angolo cottura, due camere, an

mq. 93 locali 3

AZIENDE & IMMOBILI DI MAP…

159.000

Lecco

Olate

Lecco Olate A...

Lecco zona Olate appartamento ristrutturato a nuovo, posto al piano rialzato composto da ingresso, soggiorno, angolo cottura, due camere, an

mq. 93 locali 3

AZIENDE & IMMOBILI DI MAP…

159.000

Lecco

Olate

Lecco Olate A...

Lecco zona Olate appartamento ristrutturato a nuovo, posto al piano rialzato composto da ingresso, soggiorno, angolo cottura, due camere, an

mq. 93 locali 3

AZIENDE & IMMOBILI DI MAP…

chicercacasa
quilatrova