Vendita Loft Nembro | Chicercacasa.it
NEMBRO CENTRALISSIMO LOFT CON SOLARIUM DI 150 MQ

109.000

Vendita Loft Nembro

via Roma 30, Nembro

Descrizione

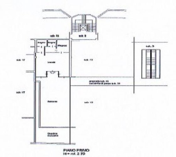
In posizione centrale e servita, affacciato direttamente sulla via principale del centro storico di nembro, disponiamo di esclusivo loft open-space di 80 mq inserito in polo commerciale di recente realizzazione. L'immobile è posto al piano primo servito da scalinata di design e da ascensore ed è completo di aria condizionata caldo/freddo, filodiffusione, antifurto, antincendio, doppi servizi ad uso disabili, area video-sorvegliata, pompa di calore, area esterna (solarium/terrazzo) di 150 mq e ampio parcheggio sottostante. Termo-autonomo

 

Dettagli

Tipologia
Loft
Mq
80
Soffitta
No
Bagni
2
Balconi
1
Box
0
Arredamento
Non disponibile
Spese cond.
50€ Mensili
Num.posti auto
0
Piano
1
Camere da letto
1
Giardino
Si, Condominiale
Ascensore
Si
Riscaldamento
Autonomo
Locali
2
Tipo proprietà
Intera proprietà
Stato
Ristrutturato
Vendita/affitto
Vendita
Terrazzo
Si
Cucina
A vista
N.Piani Edificio
2
Portineria
No
Classe Energetica
D
IPE
174,0 kW/mq

SERIANA CASE group

Email: [email protected] - Telefono: 035341995

Indirizzo

Albino, Via Provinciale

Sito Web

SERIANA CASE group

Orari di apertura

da lunedi a venerdi dalle ore 09 alle ore 12.30- dalle ore 14.30 alle ore 19.30 il sabato dalle ore 09 alle ore 12.30, sabato pomeriggio su appuntamento

0ALTRIANNUNCISIMILI

chicercacasa
quilatrova