Vendita Negozio Nembro | Chicercacasa.it
CENTRALISSIMO NEGOZIO/UFFICIO CON AREA ESTERNA DI 150 MQ

89.000,0

Vendita Negozio Nembro

via Roma 30, Nembro

Descrizione

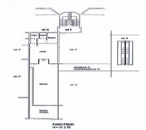
In posizione centrale e servita affacciata a centro storico, negozio/ufficio di 80 mq inserito in polo commerciale di recente realizzazione posto al piano primo servito da scalinata di design e da ascensore, l'immobile è completo di aria condizionata caldo/freddo, filodiffusione, antifurto, antincendio, doppi servizi ad uso disabili, termo-autonomo, area video-sorvegliata, pompa di calore, area esterna (solarium/terrazzo) di 150 mq e ampio parcheggio sottostante.

 

Dettagli

Classe Energetica
D
IPE
147,0 kW/mc
Mq
80
Alt. sotto trave
0.00
Area Esterna
0
Licenza
-
Parcheggi priv.
-
Parcheggi pubb.
-
Importo Affitto
0
Incasso
-
Tipo Incasso
-
Rich. Valore
-
Locali
1
Tipo proprietà
Intera proprietà

SERIANA CASE group

Email: [email protected] - Telefono: 035341995

Indirizzo

Albino, Via Provinciale

Sito Web

SERIANA CASE group

Orari di apertura

da lunedi a venerdi dalle ore 09 alle ore 12.30- dalle ore 14.30 alle ore 19.30 il sabato dalle ore 09 alle ore 12.30, sabato pomeriggio su appuntamento

21ALTRIANNUNCISIMILI

210.000

Nembro

 

Nembro Villa ...

Recentissimo, appartamento tipo attico in villa bifamiliare, posto al 2° ed ultimo piano libero sui 4 lati con ingresso indipendente da scal

mq. 135 locali 4

Immobiliare Ravellini

159.000

Nembro

 

Nembro Casa I...

Centralissima, comoda a tutti i servizi, porzione di casa indipendente cielo-terra (tipo villetta a schiera), in piccola corte del centro st

mq. 150 locali 5

Immobiliare Ravellini

159.000

Nembro

 

Nembro Casa I...

Centralissima, comoda a tutti i servizi, porzione di casa indipendente cielo-terra (tipo villetta a schiera), in piccola corte del centro st

mq. 150 locali 5

Immobiliare Ravellini

175.000

Nembro

 

Nembro Trilocale

Nuovi appartamenti in villetta di 4 unità (tipo piccola corte) completamente ristrutturata; 1° piano, superficie 85 mq; ingresso, soggiorno,

mq. 80 locali 3

Immobiliare Ravellini

185.000

Nembro

 

Trilocale

In zona residenziale a pochi minuti dal centro del paese. Nuovo trilocale libero su tre lati, posto all'ultimo piano di palazzina quadri fam

mq. 82 locali 3

Estia Immobiliare Srl

185.000

Nembro

 

Trilocale

In zona residenziale a pochi minuti dal centro del paese. Nuovo trilocale libero su tre lati, posto all'ultimo piano di palazzina quadri fam

mq. 82 locali 3

Estia Immobiliare Srl

185.000

Nembro

 

Trilocale

In zona residenziale a pochi minuti dal centro del paese. Nuovo trilocale libero su tre lati, posto all'ultimo piano di palazzina quadri fam

mq. 82 locali 3

Estia Immobiliare Srl

145.000

Nembro

 

Nembro

Centralissima, in zona riservata e tranquilla, casetta indipendente al rustico da ultimare, posta all'interno di una piccolissima corte, dis

mq. 195 locali 5

Immobiliare Ravellini

chicercacasa
quilatrova