Vendita Plurilocale Bergamo | Chicercacasa.it
Via Divisione Julia - Ampio quadrilocale da ristrutturare

310.000

Vendita Plurilocale Bergamo

via Divisione Julia, Bergamo

Zona:

Borgo Palazzo, Centro, Stazione

Descrizione

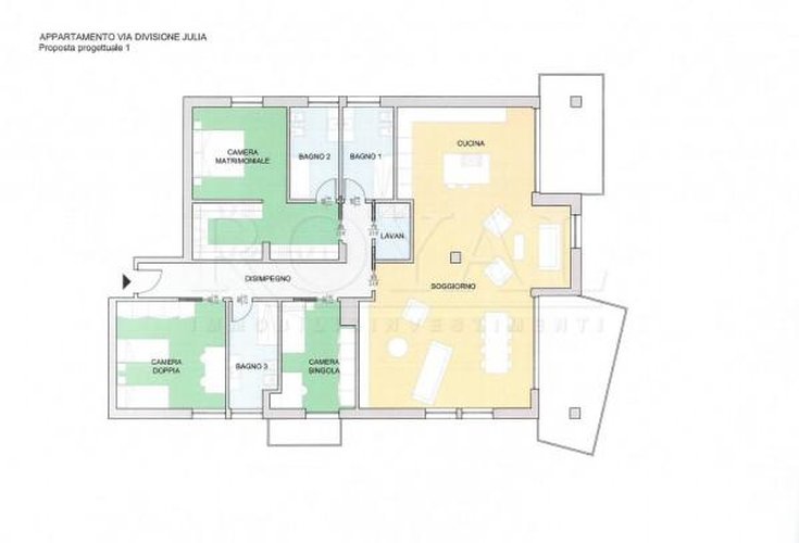
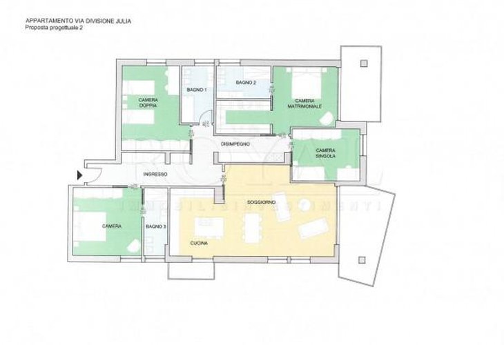
Bergamo centro - via divisione julia in stabile signorile servito da ascensore, in zona centrale ma riservata, disponiamo di ampio e luminoso appartamento di 200 mq da ristrutturare. Il progetto prevede: ingresso, soggiorno, cucina, tre camere da letto, tripli servizi, un balcone e due terrazze. L'appartamento dispone di impianto di aria condizionata. Completa la soluzione la presenza di una cantina e la possibilità di acquistare due autorimesse ad € 25.000,00 cad. Per maggiori informazioni e/o per fissare una visita in loco chiamare al numero 035 24 57 82.

 

Dettagli

Tipologia
Appartamento
Mq
200
Soffitta
No
Bagni
1
Balconi
1
Box
1
Arredamento
Non disponibile
Spese cond.
1800€ Mensili
Num.posti auto
0
Piano
1
Camere da letto
0
Giardino
Si, Condominiale
Ascensore
Si
Riscaldamento
Centralizzato
Locali
6
Tipo proprietà
Intera proprietà
Stato
Da ristrutturare
Vendita/affitto
Vendita
Terrazzo
Si
Cucina
Cucinino
N.Piani Edificio
5
Portineria
No
Classe Energetica
F
IPE
247,77 kW/mq

Royal Immobili & Investimenti

Email: [email protected] - Telefono: 035245782

Indirizzo

Bergamo, Via Paglia

Fax

035245782

Sito Web

Royal Immobili & Investimenti

Orari di apertura

non presenti.

24ALTRIANNUNCISIMILI

chicercacasa
quilatrova