Vendita Porzione Di Casa Bergamo | Chicercacasa.it
Porzione di casa

169.000

Vendita Porzione Di Casa Bergamo

via Per Curnasco, Bergamo

Zona:

Villaggio Sposi

Descrizione

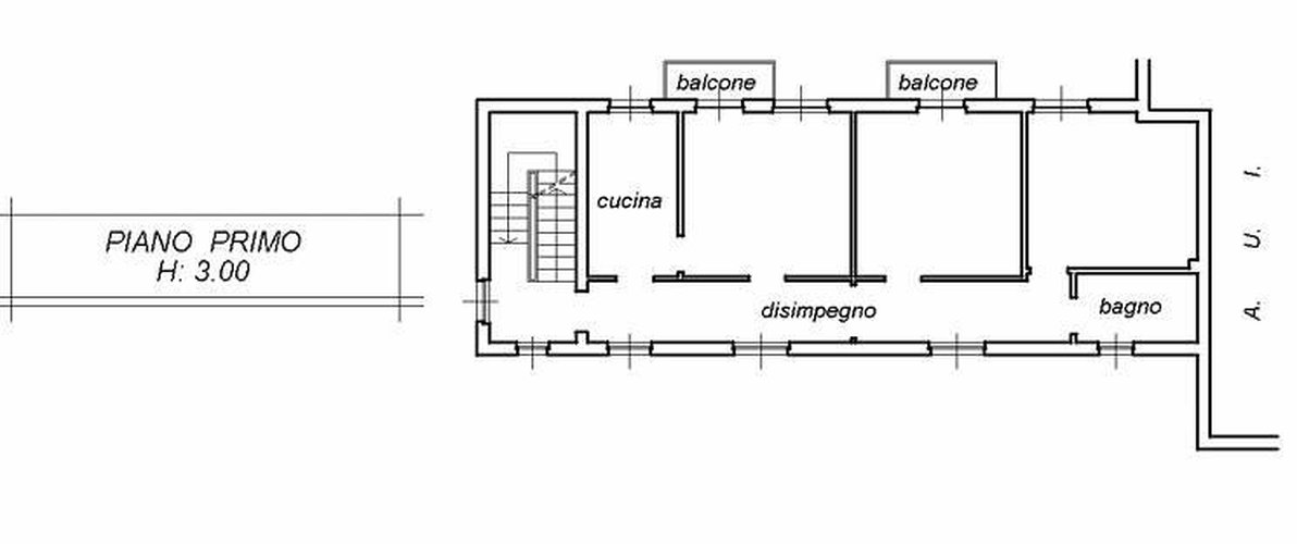
Classe energetica: g - villaggio sposi - casa indipendente<br>in zona strategica disponiamo di un'ampia porzione di casa di mq 270 con spazio esterno di proprietà, disposta su tre livelli cosi composti:<br>piano terra: ampio box di 36 mq, bagno di servizio, ripostiglio, studio e scala che conduce al piano superiore;<br>piano primo: cucina, soggiorno con balcone, disimpegno, due camere da letto matrimoniali di cui una con balcone e bagno finestrato;<br>piano secondo: ampio sottotetto con altezza regolare per renderlo abitabile;<br>la soluzione è da ristrutturare.<br>no spese condominiali.

 

Dettagli

Tipologia
Porzione di casa
Mq
270
Soffitta
Non specificato
Bagni
2
Balconi
0
Box
-
Arredamento
Non presente
Spese cond.
-
Num.posti auto
0
Piano
0
Camere da letto
4
Giardino
Si, Privato
Ascensore
Non specificato
Riscaldamento
Autonomo
Locali
6
Tipo proprietà
Non specificato
Stato
Da ristrutturare
Vendita/affitto
Vendita
Terrazzo
No
Cucina
Abitabile
N.Piani Edificio
2
Portineria
Si
Classe Energetica
G
IPE
250 kW/mc

Atmosfera Case

Email: [email protected] - Telefono: 035240174

Indirizzo

Bergamo, Via Bianzana, 3

Sito Web

Atmosfera Case

Orari di apertura

non presenti.

17ALTRIANNUNCISIMILI

chicercacasa
quilatrova