Vendita Quadrilocale Alzano Lombardo | Chicercacasa.it
Quadrilocale indipendente con giardino

370.000

Vendita Quadrilocale Alzano Lombardo

via Giacomo Puccini, Alzano Lombardo

Descrizione

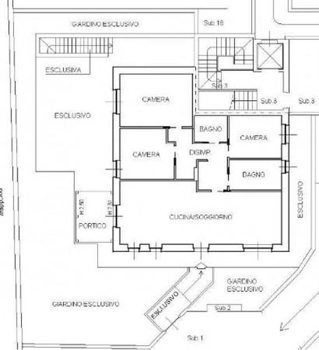
Zona residenziale e servita, al piano terra di una nuova signorile palazzina di solo 3 unità abitative, disponiamo di luminoso quadrilocale, libero sui 4 lati, con ingresso indipendente, 250 mq. Di giardino piantumato di proprietà. L’immobile è composto da: ampio soggiorno con accesso diretto al porticato e giardino, cucina a vista, 3 camere, doppi servizi. Completano la proprietà il box doppio in larghezza e la cantina collegati direttamente all’appartamento. Ottime rifiniture, alta efficienza energetica, classe a3, serramenti in legno lamellare con triplo vetro, riscaldamento autonomo a pavimento, pompa di calore, fotovoltaico, predisposizione aria condizionata e antifurto, tapparelle elettriche con domotica, impianto di domotica, videocitofono, irrigazione automatica nel giardino. Libero subito. Nel prezzo è compreso l'arredo nuovo. Info: 3895925259 beatrice rif. 883 www.immobiliaregavotti.it

 

Dettagli

Tipologia
Appartamento
Mq
158
Soffitta
No
Bagni
2
Balconi
1
Box
2
Arredamento
Discreto
Spese cond.
30€ Mensili
Num.posti auto
0
Piano
0
Camere da letto
3
Giardino
Si, Privato
Ascensore
Si
Riscaldamento
Autonomo
Locali
4
Tipo proprietà
Intera proprietà
Stato
Nuovo
Vendita/affitto
Vendita
Terrazzo
Si
Cucina
A vista
N.Piani Edificio
2
Portineria
No
Classe Energetica
A+
IPE
58,72 kW/mq

Immobiliare Gavotti Brissoni

Email: [email protected] - Telefono: 0350176853

Indirizzo

Bergamo, via Cesare Correnti

Fax

03519962889

Sito Web

Immobiliare Gavotti Brissoni

agenzia

Orari di apertura

non presenti.

5ALTRIANNUNCISIMILI

chicercacasa
quilatrova