Vendita Quadrilocale Alzano Lombardo | Chicercacasa.it
Quadrilocale ultimo piano con porzione di giardino

95.000

Vendita Quadrilocale Alzano Lombardo

via Giuseppe Verdi, Alzano Lombardo

Descrizione

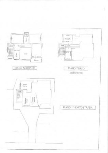
Confine nembro viana, a pochi passi da tutti i mezzi e servizi. Quadrilocale al secondo ed ultimo piano, in contesto residenziale di sole tre famiglie; nessuna spesa condominiale! soggiorno con cucina separata (possibilità di creare un grande e luminoso open-space), balcone vivibile, disimpegno notte composto da tre camere da letto e bagno finistrato. Da rivedere internamente. Termoautonomo, tetto rifatto l'anno scorso. Porzione di solaio e doppia cantina. Giardino di proprietà. Possibilità di creare posto auto esclusivo nel cortile. Contesto in ordine nelle parti comuni; facciate rifatte recentemente.

 

Dettagli

Tipologia
Appartamento
Mq
105
Soffitta
No
Bagni
1
Balconi
1
Box
0
Arredamento
Non disponibile
Spese cond.
-
Num.posti auto
1
Piano
2
Camere da letto
3
Giardino
Si, Privato
Ascensore
No
Riscaldamento
Autonomo
Locali
4
Tipo proprietà
Intera proprietà
Stato
Da ristrutturare
Vendita/affitto
Vendita
Terrazzo
Si
Cucina
Abitabile
N.Piani Edificio
2
Portineria
No
Classe Energetica
G
IPE
195,0 kW/mq

SERIANA CASE group

Email: [email protected] - Telefono: 035341995

Indirizzo

Albino, Via Provinciale

Sito Web

SERIANA CASE group

Orari di apertura

da lunedi a venerdi dalle ore 09 alle ore 12.30- dalle ore 14.30 alle ore 19.30 il sabato dalle ore 09 alle ore 12.30, sabato pomeriggio su appuntamento

19ALTRIANNUNCISIMILI

270.000

Alzano Lombardo

 

Villa Singola

Classe energetica: B - In zona residenziale a pochi passi dal centro del paese. Ampia villa di testa di recente costruzione libera su tre la

mq. 260 locali 6

Estia Immobiliare Srl

270.000

Alzano Lombardo

 

Villa Singola

Classe energetica: B - In zona residenziale a pochi passi dal centro del paese. Ampia villa di testa di recente costruzione libera su tre la

mq. 260 locali 6

Estia Immobiliare Srl

270.000

Alzano Lombardo

 

Villa Singola

Classe energetica: B - In zona residenziale a pochi passi dal centro del paese. Ampia villa di testa di recente costruzione libera su tre la

mq. 260 locali 6

Estia Immobiliare Srl

225.000

Alzano Lombardo

 

Quadrilocale ...

Nese. Posizione tranquilla e panoramica. Grazioso appartamento quadrilocale in villetta, interamente rivisitato e finemente curato nei detta

mq. 120 locali 4

SERIANA CASE group

250.000

Alzano Lombardo

 

Alzano Quadri...

Centralissimo, caratteristico, appartamento in antica corte, finemente ristrutturato, posto al 1° piano della superficie di 120 mq composto

mq. 120 locali 4

Immobiliare Ravellini

230.000

Alzano Lombardo

 

Trilocale

Alzano sul confine con Ranica, zona prettamente residenziale con tutti i servizi fuori casa, In recentissima minipalazzina costituita da sol

mq. 108 locali 3

STUDIO CO.MED.

220.000

Alzano Lombardo

 

Appartamento ...

Vendesi luminoso e moderno appartamento di 105 mq in contesto industriale ristrutturato. Soggiorno con affaccio su terrazza di 30 mq, Cucina

mq. 105 locali 3

DDstudio

260.000

Alzano Lombardo

 

Ampio Quadril...

Zona residenziale vicinanze centro paese, in contesto di bifamiliare, disponiamo di strepitoso appartamento posto al piano attico, libero su

mq. 222 locali 4

Immobiliare Gavotti Briss…

chicercacasa
quilatrova