Vendita Quadrilocale Bergamo | Chicercacasa.it
Via Paglia - Quadrilocale con ampie terrazze

900.000

Vendita Quadrilocale Bergamo

via Giorgio e Guido Paglia, Bergamo

Zona:

Borgo Palazzo, Centro, Stazione

Descrizione

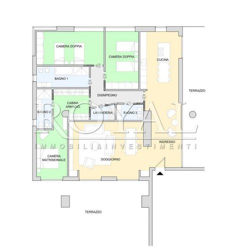
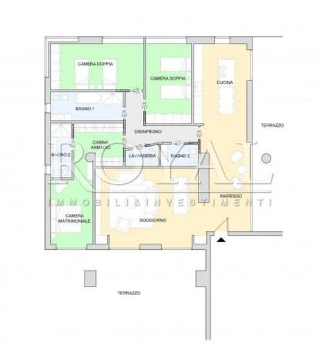
Bergamo centro - via paglia in elegante palazzo signorile con servizio di portineria, disponiamo di luminoso immobile con tripla esposizione, posto al secondo e piano servito da ascensore. Attualmente utilizzato come ufficio, l'immobile è trasformabile in abitazione. Il progetto di ristrutturazione prevede la realizzazione di un quadrilocale di 194 mq con ampio soggiorno e cucina, tre camere da letto, disimpegno, doppi servizi e due ampie terrazze che consentono di avere un esclusivo spazio esterno per un totale di 320 mq. L'immobile dispone di finiture di pregio con doppi vetri e impianto di condizionamento. Completa la soluzione la presenza di un posto auto ad uso esclusivo all'interno del palazzo. Per maggiori informazioni e/o per fissare una visita in loco chiamare al numero 035 24 57 82.

 

Dettagli

Tipologia
Appartamento
Mq
194
Soffitta
No
Bagni
2
Balconi
0
Box
-
Arredamento
Non disponibile
Spese cond.
-
Num.posti auto
1
Piano
2
Camere da letto
3
Giardino
Si, Condominiale
Ascensore
Si
Riscaldamento
Centralizzato
Locali
4
Tipo proprietà
Intera proprietà
Stato
Da ristrutturare
Vendita/affitto
Vendita
Terrazzo
Si
Cucina
Abitabile
N.Piani Edificio
5
Portineria
Si
Classe Energetica
G
IPE
87,24 kW/mq

Royal Immobili & Investimenti

Email: [email protected] - Telefono: 035245782

Indirizzo

Bergamo, Via Paglia

Fax

035245782

Sito Web

Royal Immobili & Investimenti

Orari di apertura

non presenti.

177ALTRIANNUNCISIMILI

155.000

Bergamo

Canovine, Colognola

Trilocale Con...

Rif: 1638 - Bergamo Case propone in vendita a Bergamo nel quartiere di San Tomaso de Calvi zona Università ampio trilocale con box. L'immobi

mq. 110 locali 3

Bergamo Case

150.000

Bergamo

Corridoni, Redona

Borgo S. Cate...

Bergamo, Borgo S. Caterina, Vic. Santuario dell'Addolorata, in zona servita da ogni comodità, fermate bus, farmacia, bar, supermercato... In

mq. 95 locali 3

ITAL HOME BERGAMO

150.000

Bergamo

Corridoni, Redona

Borgo S. Cate...

Bergamo, Borgo S. Caterina, Vic. Santuario dell'Addolorata, in zona servita da ogni comodità, fermate bus, farmacia, bar, supermercato... In

mq. 95 locali 3

ITAL HOME BERGAMO

175.000

Bergamo

Canovine, Colognola

Quattro Locali

Bergamo, via Spino, zona Coop, in palazzina in ottime condizioni dei primi anni 90, ampio quattro locali al piano secondo servito da ascenso

mq. 122 locali 4

ETHICASA

159.000

Bergamo

Borgo Palazzo, Centro, S…

Zona Coin Nuo...

Zona Coin, appartamento bilocale pari al nuovo, totalmente ristrutturato in ogni dettaglio inserito palazzina in perfette condizioni, termoa

mq. 71 locali 2

SERIANA CASE group

165.000

Bergamo

Corridoni, Redona

Quadrilocale ...

RGA Immobiliare propone quadrilocale di 130 mq posto al primo piano. Internamente è così suddiviso: ingresso, studio, zona giorno, cucina se

mq. 135 locali 4

RGA Immobiliare

165.000

Bergamo

Corridoni, Redona

Quadrilocale ...

RGA Immobiliare propone quadrilocale di 130 mq posto al primo piano. Internamente è così suddiviso: ingresso, studio, zona giorno, cucina se

mq. 135 locali 4

RGA Immobiliare

199.000

Bergamo

Malpensata

Trilocale

Classe energetica: E - EPgl,nren: 130,83 kWh/m² - Bergamo Case propone in vendita a Bergamo nel quartiere Malpensata ampio trilocale.<br>L'i

mq. 98 locali 3

Bergamo Case

chicercacasa
quilatrova