Vendita Quadrilocale Bergamo | Chicercacasa.it
Quadrilocale con giardino due box Villaggio Sposi

229.000

Vendita Quadrilocale Bergamo

via Tiepolo, Bergamo

Zona:

Canovine, Colognola

Descrizione

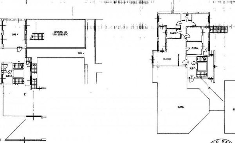
Rif: 1344 - bergamo case propone in vendita a bergamo nel quartiere del villaggio degli sposi quadrilocale con giardino e due autorimesse. L'immobile è ubicato in un condominio signorile di recente costruzione, è posto al primo piano servito da ascensore ed è composto da ingresso, ampio soggiorno, cucina abitabile, disimpegno, tre camere da letto, doppi servizi, due balconi ed un giardino privato di 80 mq. Completano la proprietà una cantina ed due autorimesse singole, con possibilità di acquistare ulteriore box. Le finiture sono buone, i pavimenti sono in ceramica, gli infissi sono doppi in legno, il portoncino è blindato e gli impianti sono a norma. L'immobile si presta ad essere abitato da subito. Non vi sono problemi di parcheggio ed è vicino al nuovo ospedale.

 

Dettagli

Tipologia
Appartamento
Mq
115
Soffitta
No
Bagni
2
Balconi
2
Box
1
Arredamento
Non disponibile
Spese cond.
80€ Mensili
Num.posti auto
0
Piano
0
Camere da letto
3
Giardino
Si, Privato
Ascensore
Si
Riscaldamento
Autonomo
Locali
4
Tipo proprietà
Non specificato
Stato
Ristrutturato
Vendita/affitto
Vendita
Terrazzo
No
Cucina
Abitabile
N.Piani Edificio
4
Portineria
No
Classe Energetica
G
IPE
199,0 kW/mq

Bergamo Case

Email: [email protected] - Telefono: 0352652551

Indirizzo

Bergamo, Via Camozzi, 91

Fax

0350662434

Sito Web

Bergamo Case

Orari di apertura

non presenti.

175ALTRIANNUNCISIMILI

229.000

Bergamo

Canovine, Colognola

Quadrilocale ...

Rif: 1344 - Bergamo Case propone in vendita a Bergamo nel quartiere del Villaggio degli Sposi quadrilocale con giardino e due autorimesse. L

mq. 115 locali 4

Bergamo Case

188.000

Bergamo

Canovine, Colognola

Trilocale Con...

Rif: 1327 - Bergamo Case propone in vendita a Bergamo in Via San Bernardino recente trilocale con terrazzo di 50 mq e box. L'immobile è ubic

mq. 90 locali 3

Bergamo Case

220.000

Bergamo

Longuelo, San Paolo

Trilocale Ult...

Rif: 1429 - Bergamo Case propone in vendita a Bergamo nel quartiere di Loreto in Piazza Varsavia ampio trilocale posto all'ultimo piano. L'i

mq. 110 locali 3

Bergamo Case

220.000

Bergamo

Malpensata

Trilocale

Classe energetica: E - EPgl,nren: 130,83 kWh/m² - Bergamo Case propone in vendita a Bergamo nel quartiere Malpensata ampio trilocale con box

mq. 98 locali 3

Bergamo Case

215.000

Bergamo

Corridoni, Redona

Quadrilocale ...

Bergamo Case propone in vendita a Bergamo nel quartiere di Monterosso quadrilocale con box. L'immobile è ubicato in una piccola palazzina im

mq. 110 locali 4

Bergamo Case

255.000

Bergamo

Longuelo, San Paolo

Trilocale Con...

Rif: 1628 - Bergamo Case propone in vendita a Bergamo nel quartiere San Paolo ampio trilocale con giardino. L'immobile è ubicato in un condo

mq. 130 locali 3

Bergamo Case

220.000

Bergamo

Borgo Palazzo, Centro, S…

Trilocale Zon...

Rif: 1564 - Bergamo Case propone in vendita a Bergamo in via Moroni adiacenze Universita' ampio trilocale con posto auto di proprietà. L'imm

mq. 110 locali 3

Bergamo Case

199.000

Bergamo

Malpensata

Trilocale

Classe energetica: E - EPgl,nren: 130,83 kWh/m² - Bergamo Case propone in vendita a Bergamo nel quartiere Malpensata ampio trilocale.<br>L'i

mq. 98 locali 3

Bergamo Case

chicercacasa
quilatrova