Vendita Quadrilocale Cremona | Chicercacasa.it
Quadrilocale

75.000

Vendita Quadrilocale Cremona

Cremona (CR) Via Del Maris, Cremona

Zona:

Maristella, Santa Cristina

Descrizione

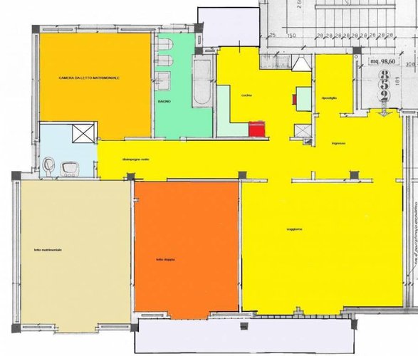
Appartamento di comode dimensioni con balconi, cantina e garage ampio. Se stai cercando un appartamento di questa tipologia non farti scappare questa fantastica opportunità...nella primissima periferia di cremona servita da pista ciclabile proponiamo luminoso ed ampio appartamento posto al terzo piano in contesto ben abitato. L'appartamento è di generosa metratura, 120 mq, con doppia esposizione. Un particolare che colpisce appena si entra è il corridoio che divide in maniera funzionale la zona giorno e la zona notte. Il soggiorno ha sia una finestra ed una porta finestra che da la possibilità di accedere all'ampia balconata. La cucina è semi abitabile accogliente e ben distribuita con la porta finestra che anch'essa da la possibilità di accedere al secondo balcone. La zona notte ha tre camere da letto comode, due bagni uno con vasca e l'altro con la doccia entrambi finestrati. Come ultimo vano ma non meno importante e di massima necessità il ripostiglio. Al piano terreno completa la proprietà un garage singolo di ampia dimensione sia in larghezza che in lunghezza ed una cantina. Cl g ipe 325.55 kwh/mqa. Il presente testo ha il solo scopo illustrativo, può contenere errori e/o omissioni e non costituisce elemento contrattuale.

 

Dettagli

Tipologia
Appartamento
Mq
120
Soffitta
Non specificato
Bagni
2
Balconi
0
Box
1
Arredamento
Non presente
Spese cond.
42€ Non specificato
Num.posti auto
0
Piano
3
Camere da letto
3
Giardino
Si, Privato
Ascensore
Non specificato
Riscaldamento
Autonomo
Locali
4
Tipo proprietà
Non specificato
Stato
Non specificato
Vendita/affitto
Vendita
Terrazzo
No
Cucina
Non specificato
N.Piani Edificio
3
Portineria
Si
Classe Energetica
G
IPE
325,55 kW/mc

Email: - Telefono:

Indirizzo

Orari di apertura

non presenti.

40ALTRIANNUNCISIMILI

180.000

Calolziocorte

Lorentino

Villa O Villino

TERSTUDIO VENDE - VILLA SINGOLA " COMPLETAMENTE DA RISTRUTTURARE", CON SPLENDIDA VISTA SULLA VAL SAN MARTINO, sita nel comune di Calolziocor

mq. 200 locali 5

Terstudio di Panza Mauro

186.000

Calolziocorte

Foppenico

Nuova Realizz...

CALOLZIO Foppenico - Il progetto residenziale di Corso Europa nasce con l'obiettivo di fondere conoscenze nel costruire con il tema della so

mq. 80 locali 3

IMMOBILIARE NEROSUBIANCO

186.000

Calolziocorte

Foppenico

Nuova Realizz...

CALOLZIO Foppenico - Il progetto residenziale di Corso Europa nasce con l'obiettivo di fondere conoscenze nel costruire con il tema della so

mq. 80 locali 3

IMMOBILIARE NEROSUBIANCO

186.000

Calolziocorte

Foppenico

Nuova Realizz...

CALOLZIO Foppenico - Il progetto residenziale di Corso Europa nasce con l'obiettivo di fondere conoscenze nel costruire con il tema della so

mq. 80 locali 3

IMMOBILIARE NEROSUBIANCO

186.000

Calolziocorte

Foppenico

Nuova Realizz...

CALOLZIO Foppenico - Il progetto residenziale di Corso Europa nasce con l'obiettivo di fondere conoscenze nel costruire con il tema della so

mq. 80 locali 3

IMMOBILIARE NEROSUBIANCO

205.000

Calolziocorte

Centro

Nuovo Triloca...

Calolziocorte zona semicentrale del paese, residenziale e tranquilla nelle vicinanze ad ogni tipologia di servizi come stazione ferroviaria

mq. 82 locali 3

Immobiliare Paola di Coro…

210.000

Calolziocorte

 

Quadrilocale ...

In posizione residenziale e tranquilla, proponiamo QUADRILOCALE posto su due livelli, in palazzina di sole 4 unità abitative con spese di ge

mq. 149 locali 4

Immobiliare Frigerio

210.000

Calolziocorte

Centro

Calolziocorte...

Calolziocorte in zona Foppenico, ampia casa singola completamente ristrutturata all'interno dagli ampi spazi, con possibile utilizzo di 2 fa

mq. 240 locali 8

Immobiliare Paola di Coro…

chicercacasa
quilatrova