Vendita Quadrilocale Sorisole | Chicercacasa.it
Stupendo attico a Petosino

490.000

Vendita Quadrilocale Sorisole

indirizzo riservato, Sorisole

Descrizione

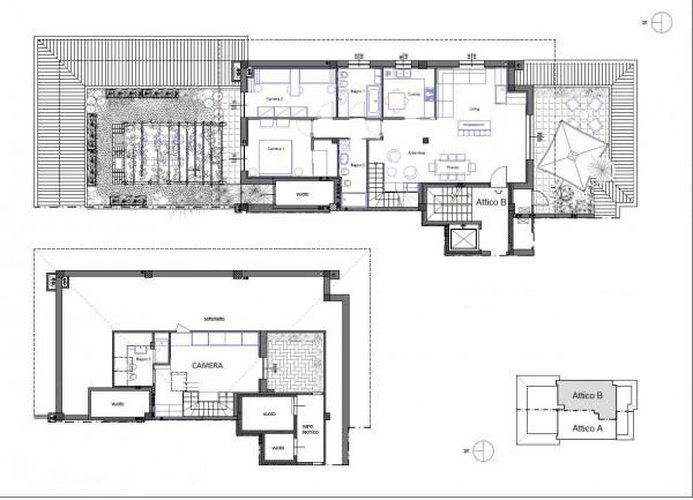
Orobica immobiliare propone a petosino in posizione dominante e molto tranquilla esclusivo complesso di poche famiglie, nuovo attico su due livelli così composto: primo livello con ingresso, cucina abitabile con accesso diretto al terrazzo panoramico ideale per pranzare all’aperto da cui si gode una spettacolare vista su citta alta ed i coli di bergamo, zona soggiorno con affaccio e uscita sulla terrazza di ampia metratura, zona notte che comprende due camere e un bagno. Tramite la scala interna di facile accesso si accede al secondo livello che comprende uno studio/camera, ed un bagno privato. Da qui si può accede alla terza terrazza a pozzo indipendente e riservata. Al piano interrato abbiamo la cantina. Internamente può essere completamente personalizato, il capitolato è di alto livello. Possibilità acquisto box multiplo

 

Dettagli

Tipologia
Appartamento
Mq
214
Soffitta
No
Bagni
3
Balconi
1
Box
-
Arredamento
Non disponibile
Spese cond.
-
Num.posti auto
0
Piano
2
Camere da letto
3
Giardino
Si, Condominiale
Ascensore
Si
Riscaldamento
Autonomo
Locali
4
Tipo proprietà
Intera proprietà
Stato
Nuovo
Vendita/affitto
Vendita
Terrazzo
Si
Cucina
Abitabile
N.Piani Edificio
2
Portineria
No
Classe Energetica
B
IPE
46,15 kW/mq

OROBICA IMMOBILIARE DI MAJ STEFANO & C. S.A.S.

Email: [email protected] - Telefono: 035571755

Indirizzo

Sorisole, Via Martiri della Libertà;

Fax

035/27.01.11

Sito Web

OROBICA IMMOBILIARE DI MAJ STEFANO & C. S.A.S.

Benvenuti il personale è a Vostra completa disposizione per qualunque esigenza di carattere immobiliare. La società OROBICA IMMOBILIARE nasce nel 1993 ed ha come obbiettivo la voglia di emergere e di distinguersi, offrendo una maggiore trasparenza a tutte quelle persone che si vogliono avvicinare nel settore dell'intermediazione immobiliare. Da anni è associata alla F.I.A.I.P. (Federazione Italiana Agenti Immobiliari Professionali).

Orari di apertura

da lunedì a venerdì 09.00 -12.30 / 15.00 - 18.30 sabato su appuntamento

6ALTRIANNUNCISIMILI

410.000

Sorisole

 

Villa A Schie...

OROBICA IMMOBILIARE propone in vendita in posizione residenziale e panoramica, recente VILLA A SCHIERA DI TESTA inserita in contesto di solo

mq. 245 locali 4

OROBICA IMMOBILIARE DI MA…

410.000

Sorisole

 

Villa A Schie...

OROBICA IMMOBILIARE propone in vendita in posizione residenziale e panoramica, recente VILLA A SCHIERA DI TESTA inserita in contesto di solo

mq. 245 locali 4

OROBICA IMMOBILIARE DI MA…

395.000

Sorisole

PETOSINO

Villa Bifamil...

In località Petosino, in posizione residenziale tranquilla e ben servita, proponiamo in vendita una splendida porzione di villa bifamiliare

mq. 245 locali 6

Immobiliare Mangili

419.000

Sorisole

 

Villa Bifamil...

SORISOLE: villa bifamiliare di lusso, situata in una zona incantevole, immersa nel parco dei colli, ai piedi della Maresana. La posizione è

mq. 200 locali 4

Equipe Solutions Bergamo …

280.000

Sorisole

 

Casa Indipend...

Sorisole, fronte strada di forte passaggio, in casa bifamiliare degli anni 60/70 divisa perpendicolare con in comune vano scala per l'access

mq. 379 locali 4

VANONI IMMOBILIARE

280.000

Sorisole

 

Casa Indipend...

Sorisole, fronte strada di forte passaggio, in casa bifamiliare degli anni 60/70 divisa perpendicolare con in comune vano scala per l'access

mq. 379 locali 4

VANONI IMMOBILIARE

chicercacasa
quilatrova