Vendita Stabile Pradalunga | Chicercacasa.it
IDEALE PER COMUNITA' - CASA FAMIGLIA-ALBERGO-BED & BREKFAST.

550.000,0

Vendita Stabile Pradalunga

indirizzo riservato, Pradalunga

Descrizione

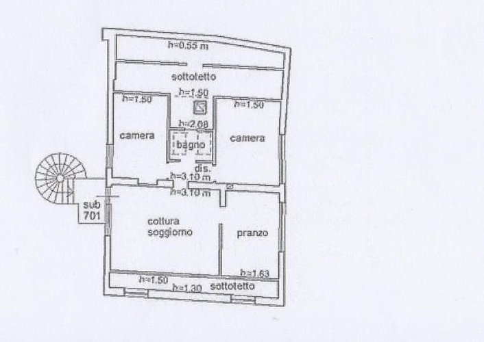
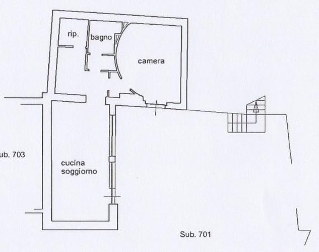
Pradalunga posizione collinare vendiamo intero fabbricato completamente ristrutturato, comprendente 6 appartamenti autonomi ed indipendenti per un totale di 12 camere, 8 bagni, 6 cucine attrezzate, ampio terreno circostante di proprietà mq. 3.100 completamente recintato, magazzino-deposito mq.36, n°10 posti auto riservati, oltre a mc. 850 di edificabilità residua. Subito abitabile gia' arredato e corredato, perfettamente funzionante ideale per comunita'- casa alloggio- ospitalita' diffusa, ed anche per strutture ricettive di ogni genere. Prezzo €uro 550.000 mutuabili, pronta consegna. Per ulteriori info e prenotazione visita: geom. Guido salvetti 335.60.495.60 [email protected] nei nostri uffici trovate consulenza professionale completa per istruire ed ottenere il migliore finanziamento in base alle vostre necessità. Dal 1986 la società immobiliare progetto casa ha sede a bergamo nella zona del centro cittadino adiacente piazza pontida, di fronte all'ingresso principale dell'istituto palazzolo, in via san bernardino n° 49. Fondata dall’attuale titolare geom. Guido salvetti, fin dall'inizio si è conquistata grande apprezzamento nel mercato immobiliare bergamasco, distinguendosi per correttezza, competenza, dinamicità e continuità. In tutti questi anni di attività svolta nel settore immobiliare, si è data priorità al rapporto con la clientela, a costanti aggiornamenti giuridico – contrattuali, tecnico - fiscali, seguendo tutt’ora corsi di formazione professionale inerenti tutti gli argomenti e le normative riguardanti il mercato immobiliare, anche grazie alla federazione italiana agenti immobiliari professionali alla quale il titolare è associato, e delle strategie di mercato, utilizzando i più efficaci mezzi di comunicazione, oggi esclusivamente telematici, programmati e assiduamente aggiornati direttamente dalla nostra sede, per la gestione dei contatti e la commercializzazione degli immobili. Oggetto della nostra attività è l’intermediazione di compravendite e locazioni di immobili residenziali, commerciali, artigianali e industriali, la gestione di nuove realizzazioni e ristrutturazioni, con particolare attenzione all’aggiornamento costante delle trattative con la proprietà. Particolarmente curato inoltre il settore degli investimenti immobiliari a reddito, con la relativa gestione delle locazioni e dei rapporti tra locatore e conduttore. Immobiliare progetto casa bergamo 035.22.23.26…..la tua agenzia di fiducia!!!

 

Dettagli

Classe Energetica
E
IPE
123,51 kW/mq
Mq
480
Alt. sotto trave
0.00
Area Esterna
0
Licenza
-
Parcheggi priv.
-
Parcheggi pubb.
-
Importo Affitto
0
Incasso
-
Tipo Incasso
-
Rich. Valore
-
Locali
20
Tipo proprietà
Intera proprietà

AGENZIA IMMOBILIARE PROGETTO CASA srl unipersonale

Email: [email protected] - Telefono: 035222326

Indirizzo

Bergamo, VIA SAN BERNARDINO, 49

Sito Web

AGENZIA IMMOBILIARE PROGETTO CASA srl unipersonale

Dal 1986 l’Immobiliare Progetto casa è presente sul mercato immobiliare bergamasco nella persona del Geometra Guido Salvetti, socio fondatore e titolare, il quale mette a vostra disposizione la sua esperienza nel settore maturata nel corso degli anni. Cortesia, competenza, accuratezza e professionalità sono le caratteristiche che contraddistinguono l’attività dell’agenzia che si occupa dell’intermediazione di compravendite e locazioni di immobili residenziali e commerciali, oltre alla gestione di patrimoni immobiliari e segue i propri clienti in tutte le fasi e per tutte le problematiche inerenti, coordinando i rapporti con notaio, uffici statali e comunali, amministratori di condominio ecc. fino alla positiva conclusione della trattativa con il passaggio della proprietà e la consegna dell’immobile.

Orari di apertura

Lun-Ven 9 -13 15 - 19 Sabato su appuntamento.

1ALTRIANNUNCISIMILI

550.000

Pradalunga

 

Ideale Per Co...

Pradalunga posizione collinare vendiamo INTERO FABBRICATO COMPLETAMENTE RISTRUTTURATO, comprendente 6 appartamenti autonomi ed indipendenti

mq. 480 locali 20

AGENZIA IMMOBILIARE PROGE…

chicercacasa
quilatrova