Vendita Terreno Edificabile Cantù | Chicercacasa.it
Terreno Edificabile - Rif. 108

700.000

Vendita Terreno Edificabile Cantù

indirizzo non presente, Cantù

Descrizione

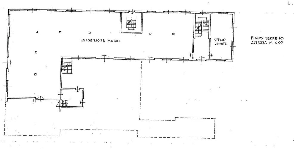
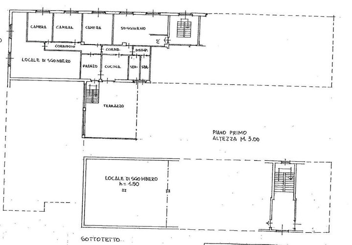
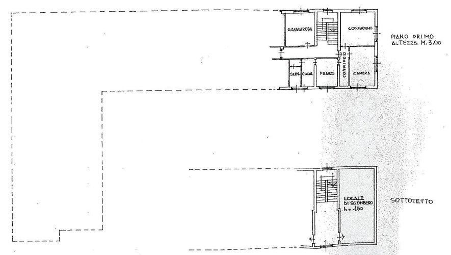
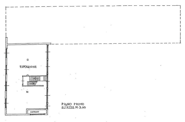
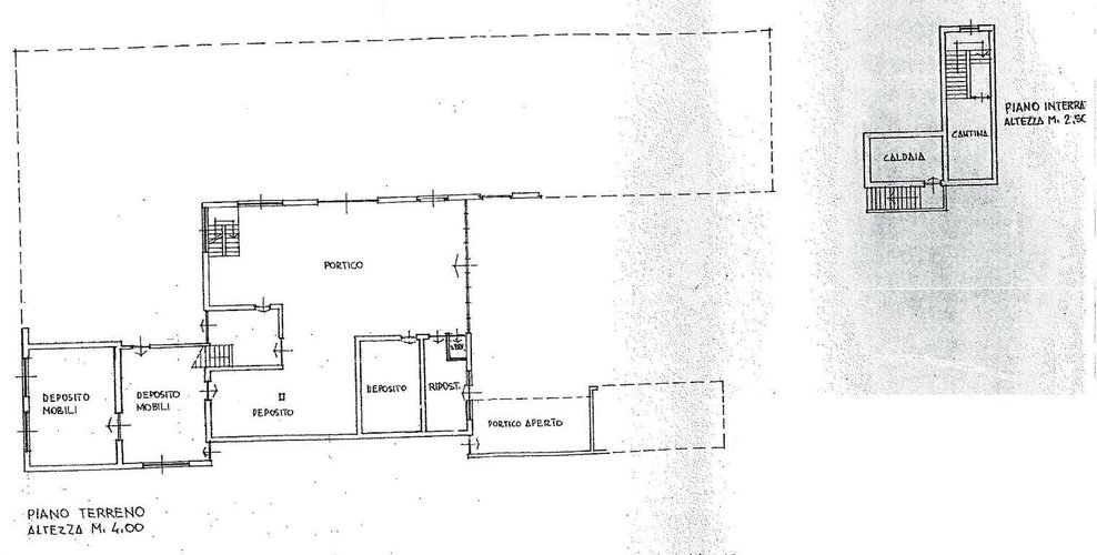
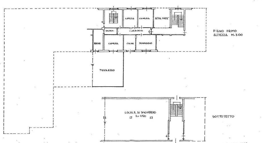
Adiacente al centro vendiamo intero stabile attualmente adibito ad esposizione mobili con soprastanti appartamenti e giardino. superficie lorda mq. 2.543,64 volume mc 8.239,97 possiblita' di totale permuta completamente libero

 

Dettagli

Tipologia
Terreno Edificabile
Mq
2543
Soffitta
Non specificato
Bagni
0
Balconi
0
Box
-
Arredamento
Non presente
Spese cond.
-
Num.posti auto
0
Piano
0
Camere da letto
0
Giardino
Si, Privato
Ascensore
Non specificato
Riscaldamento
Non specificato
Locali
-
Tipo proprietà
Non specificato
Stato
Buono
Vendita/affitto
Vendita
Terrazzo
No
Cucina
Non specificato
N.Piani Edificio
1
Portineria
Si
Classe Energetica
A+
IPE
0 kW/mc

Immobilfin s.a.s.

Email: [email protected] - Telefono: 031265315

Indirizzo

Como, Via Mentana, 4

Sito Web

Immobilfin s.a.s.

Orari di apertura

da lunedì a venerdì dalle ore 9:00 alle ore 13:00 e dalle ore 15:00 alle ore 19:00

1ALTRIANNUNCISIMILI

chicercacasa
quilatrova