Vendita Terreno Edificabile Strozza | Chicercacasa.it
TERRENO EDIFICABILE

50.000,0

Vendita Terreno Edificabile Strozza

via Roma, Strozza

Descrizione

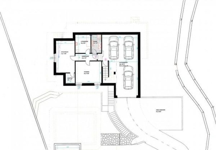
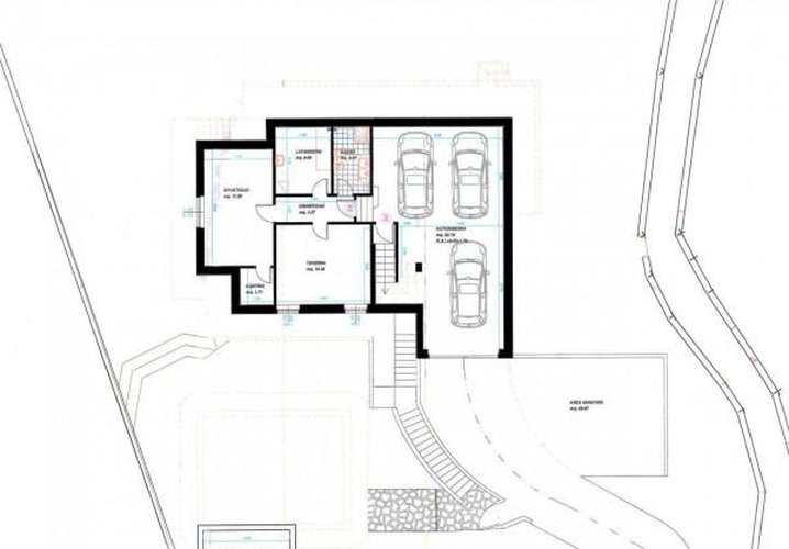
Strozza, in posizione tranquilla e riservata (strada a fondo chiuso), vendiamo in zona collinare lotto di terreno edificabile. La dimensione del lotto è di mq 1.300 con volumetria assegnata di mc 330 (pari a mq 110 fuori terra). Il progetto prevede al piano terra un quadrilocale di mq 110 (su unico livello) composto da ampio soggiorno con cucina a vista, disimpegno notte, 3 camere di cui una con cabina armadio e due bagni finestrati. Al piano seminterrato (di mq 85) è previsto un'autorimessa tripla, taverna, lavanderia, bagno, locale hobby e cantina. Tutti gli impianti (acqua - luce - gas - fognatura) già presenti all'ingresso del lotto. Immobile non soggetto a certificazione energetica. Occasione unica !!! affare da non perdere !!! strozza, comune della provincia di bergamo, all'imbocco della valle imagna, con una popolazione di circa 1.500 abitanti, dista circa 12 km dal capoluogo di provincia ed a 21 km dall'aeroporto di orio al serio.

 

Dettagli

Classe Energetica
A+
IPE
0 kW/mc
Mq
1300
Alt. sotto trave
0.00
Area Esterna
0
Licenza
-
Parcheggi priv.
-
Parcheggi pubb.
-
Importo Affitto
0
Incasso
-
Tipo Incasso
-
Rich. Valore
-
Locali
7
Tipo proprietà
Intera proprietà

Pianeta Immobiliare

Email: [email protected] - Telefono: +390354128393

Indirizzo

Ponteranica, Via Ramera

Sito Web

Pianeta Immobiliare

La nostra agenzia tratta la compravendita e la locazione di immobili prevalentemente residenziali. Le zone di nostra competenza sono la città di Bergamo, i paesi limitrofi " nel raggio di 10 km" e tutta la Valle Imagna.

Orari di apertura

lun. - ven. 9-12.30 15.00-19.00 sab. (su appuntamento) 9.00 - 12.00

0ALTRIANNUNCISIMILI

chicercacasa
quilatrova