Vendita Trilocale Arcene | Chicercacasa.it
ARCENE APPARTAMENTO IN VILLA con GIARDINO CLASSE A

180.000

Vendita Trilocale Arcene

via 25 Aprile, Arcene

Descrizione

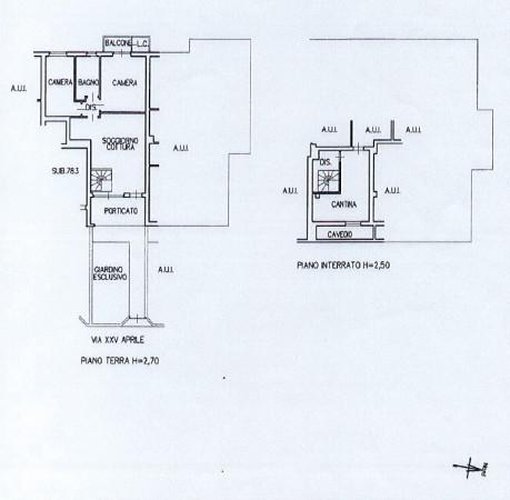
Ad arcene in bella zona residenziale vendiamo nuovissimo trilocale in villa classe a con cantina e box doppio. Ingresso pedonale indipendente piccolo giardino all'ingresso soggiorno con angolo cottura, disimpegno notte, camera singola camera matrimoniale bagno con doccia. Dalla scaletta interna si accede alla tavernetta e al box doppio. Curata nei particolari ideale per giovani coppie da vedere!!!lo studio immobiliare casamica ha un'esperienza decennale sul territorio, opera in modo etico e trasparente, mettendo a frutto tutta la professionalità nell'analisi dei documenti, che consentono di acquistare un immobile con la massima serenità. Inoltre grazie alla costante formazione e l'utilizzo di strumenti gestionali, operativi ed evolutivi, i consulenti sono specializzati nelle operazioni di acquisto in asta. La classe energetica è da intendersi come dato provvisorio e/o ipotetico. Contattaci per fissare un appuntamento ed avere maggiori informazioni. Casamica (via cavour, 8 - verdello) [email protected] www.casamica-immobiliare.com www.facebook.com/casamicait

 

Dettagli

Tipologia
Appartamento
Mq
83
Soffitta
No
Bagni
1
Balconi
1
Box
2
Arredamento
Non disponibile
Spese cond.
25€ Mensili
Num.posti auto
0
Piano
0
Camere da letto
2
Giardino
Si, Privato
Ascensore
No
Riscaldamento
Autonomo
Locali
3
Tipo proprietà
Intera proprietà
Stato
Nuovo
Vendita/affitto
Vendita
Terrazzo
No
Cucina
Angolo cottura
N.Piani Edificio
3
Portineria
No
Classe Energetica
A
IPE
175,0 kW/mq

CasAmica

Email: [email protected] - Telefono: 0354810464

Indirizzo

Verdello, Via Cavour

Sito Web

CasAmica

Dal 2003 abbiamo il piacere di proporti un servizio dinamico e interessante a 360 ° non solo per l’ACQUISTO o la VENDITA , la LOCAZIONE della casa. Dopo aver attentamente studiato in questi anni i bisogni e le aspettative delle persone intesi come vere esigenze da soddisfare, abbiamo creato una rete di COLLABORATORI INTERNI AL NOSTRO STUDIO, seri, professionali, disponibili, organizzati e capaci.

Orari di apertura

Da Lunedì al Sabato su appuntamento.

20ALTRIANNUNCISIMILI

89.000

Mornico al Serio

 

Spazio In Abb...

Proponiamo in recente contesto residenziale, ben tenuto appartamento bilocale di ampie metrature 72 mq posto al piano terra il tutto così co

mq. 72 locali 2

vendoaffittopermuto.it

89.000

Mornico al Serio

 

Spazio In Abb...

Proponiamo in recente contesto residenziale, ben tenuto appartamento bilocale di ampie metrature 72 mq posto al piano terra il tutto così co

mq. 72 locali 2

vendoaffittopermuto.it

99.000

Mornico al Serio

 

Palosco, Raff...

Nelle vicinanze di Mornico al Serio... RAFFINATO BILOCALE CON TERRAZZO A POCHI PASSI DAL CENTRO MA IN ZONA TRANQUILLA E LONTANA DAL TRAFFICO

mq. 77 locali 2

vendoaffittopermuto.it

99.000

Mornico al Serio

 

Palosco, Raff...

Nelle vicinanze di Mornico al Serio... RAFFINATO BILOCALE CON TERRAZZO A POCHI PASSI DAL CENTRO MA IN ZONA TRANQUILLA E LONTANA DAL TRAFFICO

mq. 77 locali 2

vendoaffittopermuto.it

chicercacasa
quilatrova