Vendita Trilocale Ponte San Pietro | Chicercacasa.it
AMPIO TRILOCALE CON TERRAZZO A LOCATE

157.000

Vendita Trilocale Ponte San Pietro

via Giovanni Boccaccio, Ponte San Pietro

Descrizione

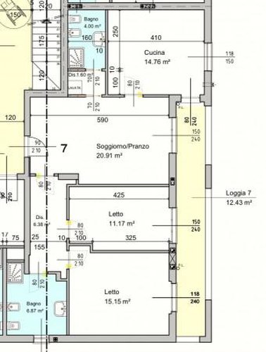
Frazione locate. Subito disponibile, in signorile palazzina, recentissimo trilocale di 95 mq in classe energetica "b" con riscaldamento a pavimento e ampio loggiato vivibile. Dotato di ascensore, l'appartamento e' ubicato al piano primo ed e' composto da: un soggiorno, una spaziosa cucina abitabile, due camere da letto, due bagni e da un corridoio. Dotato di riscaldamento autonomo con caldaia a condensazione, tapparelle elettriche, serramenti in legno doppio vetro, porta blindata, videocitofono, predisposizione aria condizionata e antifurto. Possibilita' di acquisto: -posti auto interni a 6.000 euro; -cantine a 4.000 euro; -box singoli a 14.000 euro; -box doppi di varie metrature a 22.000 euro. Classe energetica: "b" - v.d.p. - ipe: 35,06 kwh/mqa. Per info e visite: andrea colombelli - rea n. Bg-411943 tel. 035.79.29.22 - mobile 339.43.15.769 - e-mail: [email protected] house & company 360 di colombelli a. - affiliato gabetti franchising agency di calusco d' adda (bg) vieni a trovarci! siamo in via g. Marconi n. 551. Visita il nostro sito! www.gabetti.it o seguici su: facebook @gabetticaluscodadda e instagram @gabetti_caluscodadda!

 

Dettagli

Tipologia
Appartamento
Mq
95
Soffitta
No
Bagni
2
Balconi
0
Box
1
Arredamento
Non disponibile
Spese cond.
60€ Mensili
Num.posti auto
1
Piano
1
Camere da letto
2
Giardino
Si, Condominiale
Ascensore
Si
Riscaldamento
Autonomo
Locali
3
Tipo proprietà
Intera proprietà
Stato
Nuovo
Vendita/affitto
Vendita
Terrazzo
Si
Cucina
Abitabile
N.Piani Edificio
2
Portineria
No
Classe Energetica
C
IPE
70,3 kW/mq

HOUSE & COMPANY 360 DI COLOMBELLI ANDREA

Email: [email protected] - Telefono: 035792922

Indirizzo

Calusco d'Adda, via G. Marconi

Fax

035.79.28.91

Sito Web

HOUSE & COMPANY 360 DI COLOMBELLI ANDREA

Orari di apertura

Da lunedì a venerdì 9.00 - 12.00 / 14.30 - 19.00 / Sabato su appuntamento

7ALTRIANNUNCISIMILI

83.000

Ponte San Pietro

 

Nuovi Bilocal...

FRAZIONE LOCATE. IN POSIZIONE TRANQUILLA, A POCHI MINUTI DALLA STAZIONE FS E DA TUTTI I SERVIZI, ULTIMI BILOCALI AL PIANO PRIMO CON AMPIO LO

mq. 53 locali 2

HOUSE & COMPANY 360 DI CO…

83.000

Ponte San Pietro

 

Locate Biloca...

Ponte San Pietro - nella frazione di Locate, (a pochi km da Bergamo e comodissimi per la superstrada), in posizione centrale in prossimità

mq. 55 locali 2

Immobiliare Paola di Coro…

83.000

Ponte San Pietro

 

Locate Biloca...

Ponte San Pietro - nella frazione di Locate, (a pochi km da Bergamo e comodissimi per la superstrada), in posizione centrale in prossimità

mq. 55 locali 2

Immobiliare Paola di Coro…

79.000

Ponte San Pietro

Locate

Bilocale

Classe energetica: B - EPgl,nren: 35,06 kWh/m² - TERSTUDIO vende, a Poste San Pietro in zona Locate, bilocale di 65 mq con balcone in classe

mq. 65 locali 2

Terstudio snc di Panza Ma…

79.000

Ponte San Pietro

Locate

Bilocale

Classe energetica: B - EPgl,nren: 35,06 kWh/m² - TERSTUDIO vende, a Poste San Pietro in zona Locate, bilocale di 65 mq con balcone in classe

mq. 65 locali 2

Terstudio snc di Panza Ma…

60.000

Ponte San Pietro

 

Locate - Appa...

Ponte San Pietro zona prettamente residenziale in mini palazzina Ampissimo Bilocale di circa 70mq posto al piano rialzato. L'immobile è così

mq. 71 locali 2

STUDIO CO.MED.

60.000

Ponte San Pietro

 

Locate - Appa...

Ponte San Pietro zona prettamente residenziale in mini palazzina Ampissimo Bilocale di circa 70mq posto al piano rialzato. L'immobile è così

mq. 71 locali 2

STUDIO CO.MED.

chicercacasa
quilatrova