Vendita Trilocale Presezzo | Chicercacasa.it
TRILOCALE IN VENDITA A PRESEZZO

170.000

Vendita Trilocale Presezzo

via Giovanni Pascoli, Presezzo

Descrizione

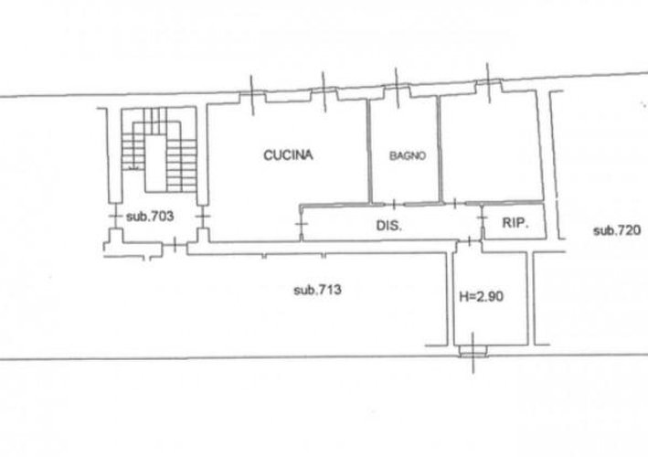
Ti proponiamo in esclusiva formula di acquisto rateizzato fino a un massimo di 10 anni con interessi 0 e senza alcun istituto di credito. Chiamaci per info. Zona residenziale nel verde e vicina a tutti i servizi del paese disponibilita' di ultimo trilocale ideali anche come ufficio o studio. L'appartamento e' nuovo, mai stato abitato, disposto su piano unico e composto come segue: luminosa zona giorno, cucina a vista e con caldaia autonoma, ampio disimpegno, camera matrimoniale, cameretta, bagno e box singolo. L'immobile si caratterizza per l'ottima esposizione solare, l'uso dei materiali in tutti gli ambienti e la completa autonomia degli impianti. Possibilita' ulteriore box. V.d.p. Classe c. Per info e visite: andrea colombelli - rea n. Bg-411943 tel. 035.79.29.22 - mobile 339.43.15.769 - e-mail: [email protected] house & company 360 di colombelli a. - affiliato gabetti franchising agency di calusco d' adda (bg) vieni a trovarci! siamo in via g. Marconi n. 551. Visita il nostro sito! www.gabetti.it o seguici su: facebook @gabetticaluscodadda e instagram @gabetti_caluscodadda!

 

Dettagli

Tipologia
Appartamento
Mq
85
Soffitta
No
Bagni
1
Balconi
0
Box
1
Arredamento
Non disponibile
Spese cond.
30€ Mensili
Num.posti auto
0
Piano
2
Camere da letto
2
Giardino
Si, Privato
Ascensore
No
Riscaldamento
Autonomo
Locali
3
Tipo proprietà
Intera proprietà
Stato
Nuovo
Vendita/affitto
Vendita
Terrazzo
No
Cucina
A vista
N.Piani Edificio
2
Portineria
No
Classe Energetica
C
IPE
57,0 kW/mq

HOUSE & COMPANY 360 DI COLOMBELLI ANDREA

Email: [email protected] - Telefono: 035792922

Indirizzo

Calusco d'Adda, via G. Marconi

Fax

035.79.28.91

Sito Web

HOUSE & COMPANY 360 DI COLOMBELLI ANDREA

Orari di apertura

Da lunedì a venerdì 9.00 - 12.00 / 14.30 - 19.00 / Sabato su appuntamento

7ALTRIANNUNCISIMILI

69.900

San Giovanni Bianco

 

Casetta Storica!

A soli due passi dal centro di San Giovanni Bianco casetta contadina, abitabile da subito, posta su III livelli : P.T : ingresso con salott

mq. - locali -

Studio Casa Zogno

74.000

San Giovanni Bianco

 

A Due Passi D...

Vicinissimo al centro, in posizione servita e comoda, appartamento di ampia metratura posto al piano secondo composto da ingresso, cucina, s

mq. 120 locali 4

Studio Casa Zogno

69.000

San Giovanni Bianco

 

Immersa Nel V...

Immersa nel verde in una zona tranquilla e soleggiata, ideale per chi ama fare passeggiate, proponiamo porzione di casa parzialmente arredat

mq. 180 locali 5

Studio Casa Zogno

77.000

San Giovanni Bianco

 

Zona Centrale!

In zona centrale, in soleggiatissima palazzina di soli tre appartamenti e senza spese condominiali, soluzione a piano secondo composta da; i

mq. 75 locali -

Studio Casa Zogno

78.000

San Giovanni Bianco

 

Immerso Nel V...

In posizione tranquilla e soleggiata proponiamo casolare bergamasco in pietra a vista, completamente indipendente e posto su due livelli, co

mq. - locali -

Studio Casa Zogno

64.000

San Giovanni Bianco

 

Immerso Nel V...

In posizione tranquilla e soleggiata proponiamo casolare bergamasco in pietra a vista, completamente indipendente e posto su due livelli, co

mq. 180 locali 6

Studio Casa Zogno

68.000

San Giovanni Bianco

 

Panoramicissi...

A soli due passi dal paese, in zona tranquilla e soleggiata, proponiamo rustico libero su tre lati e posto su due livelli, stalla e fienile,

mq. - locali -

Studio Casa Zogno

70.000

San Giovanni Bianco

 

Vista Aerea!

In posizione panoramica e soleggiata proponiamo porzione di casa, libera su tre lati e posta su tre livelli, composta da ingresso, cucina ab

mq. - locali -

Studio Casa Zogno

chicercacasa
quilatrova