Vendita Villa Albino | Chicercacasa.it
Villa singola come nuova!

390.000

Vendita Villa Albino

via delle Foppe, Albino

Descrizione

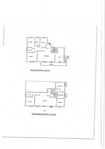
Prestigiosa zona residenziale sempre soleggiata, immersa nel verde e nella tranquillità, esclusiva villa singola con giardino privato disposta su due livelli. Ingresso, luminoso soggiorno con accesso al porticato e giardino privato ottimamente esposto, cucina separata e abitabile, bagno di servizio, disimpegno notte composto da tre camere da letto e bagno padronale. Al piano seminterrato altro appartamento bilocale di grandi dimensioni (ideale anche come locale taverna) composto da cucina abitabile, ampio soggiorno di 50 mq impreziosito da camino, camera matrimoniale e altro bagno. Completano la soluzione cantina, locale lavanderia e box triplo al piano interrato. Soluzione curata in ogni dettaglio, ottime finiture e dotata di di riscaldamento a pavimento, aspirazione centralizzata, impianto allarme volumetrico e perimetrale. Giardino di proprietà di 300 mq e esclusivo porticato e box triplo. Da vedere!

 

Dettagli

Tipologia
Villa
Mq
250
Soffitta
No
Bagni
3
Balconi
1
Box
2
Arredamento
Nuovo
Spese cond.
-
Num.posti auto
1
Piano
0
Camere da letto
3
Giardino
Si, Privato
Ascensore
No
Riscaldamento
Autonomo
Locali
4
Tipo proprietà
Intera proprietà
Stato
Ottimo
Vendita/affitto
Vendita
Terrazzo
Si
Cucina
Abitabile
N.Piani Edificio
2
Portineria
No
Classe Energetica
E
IPE
121,0 kW/mq

SERIANA CASE group

Email: [email protected] - Telefono: 035341995

Indirizzo

Albino, Via Provinciale

Sito Web

SERIANA CASE group

Orari di apertura

da lunedi a venerdi dalle ore 09 alle ore 12.30- dalle ore 14.30 alle ore 19.30 il sabato dalle ore 09 alle ore 12.30, sabato pomeriggio su appuntamento

0ALTRIANNUNCISIMILI

chicercacasa
quilatrova