Vendita Villa Calvisano | Chicercacasa.it
VILLA BIFAMILIARE

265.000

Vendita Villa Calvisano

indirizzo riservato, Calvisano

Descrizione

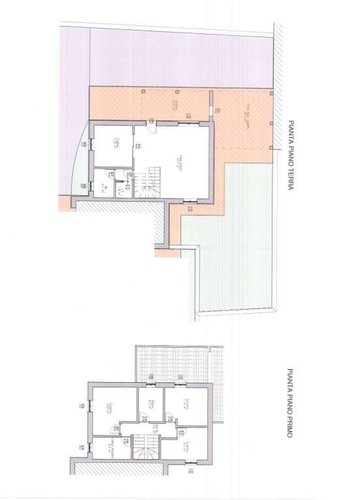
Situata a pochi metri dalle scuole elementari, questa nuovissima villa bifamiliare con ampio giardino privato e porticato che dà la possibilità di accedere all'ampio soggiorno di 36 mq ,molto luminoso è collegato alla spaziosa cucina abitabile con accesso al giardino. Il disimpegno crea il collegamento con il bagno, avente funzione di lavanderia. Salendo al primo piano si trova una tranquilla zona notte. Tre moderne camere, una singola , una doppia e una matrimoniale con cabina armadio. A completare il piano, il secondo bagno. Realizzata secondo un design innovativo e dotata delle più avanzate tecnologie energetiche ed architettoniche. Finiture ottimali ed è caratterizzata da tutti gli impianti di ultima generazione per consentire il massimo confort e bassi costi di gestione. Valutiamo la permuta del tuo immobile consulenza gratuita per la fattibilità del mutuo. Il nostro ufficio è in grado di offrire attraverso personale qualificato, unaccurata attività di intermediazione e di consulenza inerente la compravendita e la locazione. Di seguito vogliamo elencarti alcuni dei servizi offerti dalla nostra agenzia: - valutazione gratuita del tuo immobile grazie alla conoscenza capillare della zona e dellandamento del mercato; - assistenza in tutte le fasi della compravendita sino al rogito notarile; - promozione e pubblicità del tuo immobile , sul nostro sito e su numerosi portali immobiliari con foto, descrizioni e dettagli esaustivi; - consulenze finanziarie per lottenimento del mutuo; - disponibilità di numerosi acquirenti presenti nella nostra banca dati infine nessun compenso è dovuto in caso di mancata conclusione dellaffare. Per maggiori informazioni contattateci al numero 030/968100 oppure via e-mail all'indirizzo [email protected]

 

Dettagli

Tipologia
Villa
Mq
184
Soffitta
Non specificato
Bagni
2
Balconi
0
Box
2
Arredamento
Non presente
Spese cond.
-
Num.posti auto
1
Piano
0
Camere da letto
3
Giardino
Si, Privato
Ascensore
Non specificato
Riscaldamento
Autonomo
Locali
5
Tipo proprietà
Non specificato
Stato
Non specificato
Vendita/affitto
Vendita
Terrazzo
No
Cucina
Non specificato
N.Piani Edificio
2
Portineria
Si
Classe Energetica
F
IPE
175,0 kW/mc

Email: - Telefono:

Indirizzo

Orari di apertura

non presenti.

0ALTRIANNUNCISIMILI

chicercacasa
quilatrova