Vendita Villa Monte Marenzo | Chicercacasa.it
Villa singola Al rustico

450.000

Vendita Villa Monte Marenzo

indirizzo non presente, Monte Marenzo

Descrizione

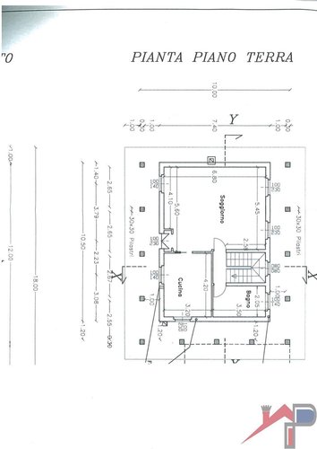
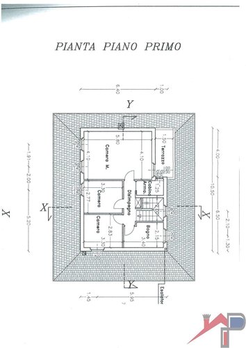
Monte marenzo, in bellissima posizione a due passi dal centro paese in zona residenziale e tranquilla su strada a fondo chiuso si propone un ampia villa singola, di nuova costruzione venduta al rustico. La casa dispone di un ampio giardino privato di circa mq.1000 dove volendo é possibile posizionare anche una piscina, l'immobile dagli spazi generosi é così composto; al piano interrato troviamo l'ampia autorimessa di circa mq.44 ideale per il parcheggio di più auto, tramite accesso diretto alla casa troviamo una ampio locale pluriuso/ taverna, un bagno, locale caldaia e un altro locale a disposizione, questo piano é circondato da un'intercapedine sfruttabile che isola l'immobile dal terreno; la scala interna porta al piano terreno dove trovano spazio un ampio soggiorno, una cucina abitabile una bagno, il porticato esterno che affaccia sul giardino, al primo piano ci sono 3 ampie camere da letto di cui la matrimoniale con cabina armadio e un balcone. L'immobile é terminato esternamente mentre l'interno é da rifinire a cura dell'acquirente, gli impianti sono già predisposti. L'immobile é predisposto per raggiungere la classe energetica a+ ottima soluzione per famiglie in bellissima posizione.

 

Dettagli

Tipologia
Villa
Mq
335
Soffitta
Non specificato
Bagni
3
Balconi
0
Box
-
Arredamento
Non presente
Spese cond.
-
Num.posti auto
0
Piano
0
Camere da letto
3
Giardino
Si, Privato
Ascensore
Non specificato
Riscaldamento
Autonomo
Locali
6
Tipo proprietà
Non specificato
Stato
Nuovo
Vendita/affitto
Vendita
Terrazzo
No
Cucina
Abitabile
N.Piani Edificio
0
Portineria
Si
Classe Energetica
A+
IPE
0 kW/mc

Immobiliare Paola di Corona Paola

Email: [email protected] - Telefono: 035783688

Indirizzo

P.za Vittorio Veneto 1

Sito Web

Immobiliare Paola di Corona Paola

Orari di apertura

non presenti.

1ALTRIANNUNCISIMILI

chicercacasa
quilatrova