Vendita Villa O Villino Martinengo | Chicercacasa.it
Villa o villino

420.000

Vendita Villa O Villino Martinengo

via San Zeno, Martinengo

Descrizione

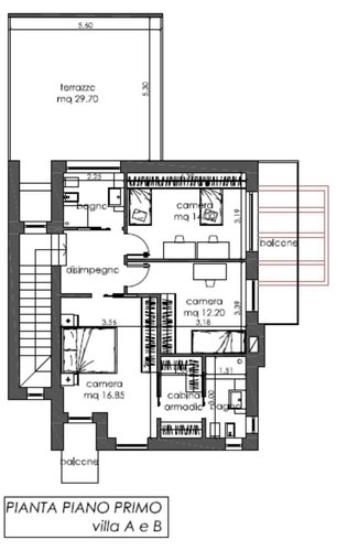
Classe energetica: a1 - terstudio vende nuovissima villa ad elevato risparmio energetico, nel comune di martinengo<br><br>l'immobile è così composto:<br>-al piano terra: ampio e luminoso soggiorno con splendide vetrate e accesso diretto al giardino privato, cucina abitabile dalla quale si accede ad una graziosa veranda e bagno di servizio, il tutto collegato ad un' autorimessa doppia in larghezza. <br>-al piano primo: camera matrimoniale con cabina armadio, bagno privato e piccolo balcone esclusivo, due camere da letto con accesso diretto all'ampio balcone comune, disimpegno, bagno. Completa la soluzione una terrazza di circa 30 mq.<br><br>la villa è circondata da giardino esclusivo di circa 320 mq. <br><br>l'abitazione sarà dotata di:<br>- impianto fotovoltaico <br>- centrale termica ibrida<br>- impianto citofonico<br>- predisposizione impianto di raffrescamento e antifurto<br>- impianto domotico per gestione centralizzata delle tapparelle<br><br>l'unità immobiliare sopra descritta e le relative pertinenze, saranno accuratamente finite in ogni loro parte, con l'impiego di materiali di ottima qualità, posti in opera a perfetta regola d'arte e consegnate complete, funzionali ed efficienti in tutte le loro parti. <br><br>capitolato delle opere, dei materiali e progetti sono consultabili in agenzia.<br> <br> per maggiori info contatta l'agenzia terstudio<br> [email protected]<br> tel 035 4385309<br> cell 327 0561502<br> www.terstudio.it

 

Dettagli

Tipologia
Villa o villino
Mq
210
Soffitta
Non specificato
Bagni
3
Balconi
0
Box
-
Arredamento
Non presente
Spese cond.
-
Num.posti auto
0
Piano
0
Camere da letto
3
Giardino
Si, Privato
Ascensore
Non specificato
Riscaldamento
Autonomo
Locali
4
Tipo proprietà
Non specificato
Stato
Ottimo
Vendita/affitto
Vendita
Terrazzo
No
Cucina
Abitabile
N.Piani Edificio
0
Portineria
Si
Classe Energetica
A1
IPE
0 kW/mc

Terstudio di Panza Mauro

Email: [email protected] - Telefono: 0354385309

Indirizzo

via Lega Lombarda 159

Sito Web

Terstudio di Panza Mauro

Orari di apertura

non presenti.

3ALTRIANNUNCISIMILI

162.000

Villa d'Adda

 

Nuovo Triloca...

Ottima opportunità! Nuovo trilocale tipo attico di circa 100 mq con terrazzo vivibile di 70 mq. Ampio soggiorno, cucina abitabile, disimpegn

mq. 121 locali 3

PROFESSIONECASA CALUSCO

173.000

Villa d'Adda

 

Nuovo Triloca...

Rif: H&C173VD-01 - ULTIME DISPONIBILITA'! VENDESI IN PRONTA CONSEGNA, NUOVO TRILOCALE DI BEN 111 MQ CON TERRAZZONE VIVIBILE COPERTO DI COMPL

mq. 111 locali 3

HOUSE & COMPANY 360 DI CO…

129.000

Villa d'Adda

 

Quadrilocale

Classe energetica: D - EPgl,nren: 116,00 kWh/m² - In zona Tranquilla proponiamo spazioso Trilocale Ristrutturato posto al primo piano in una

mq. 90 locali 4

Realizza srl

chicercacasa
quilatrova