Vendita Villa Presezzo | Chicercacasa.it
VILLA SINGOLA IN VENDITA A PRESEZZO

650.000

Vendita Villa Presezzo

via Vittorio Veneto, Presezzo

Descrizione

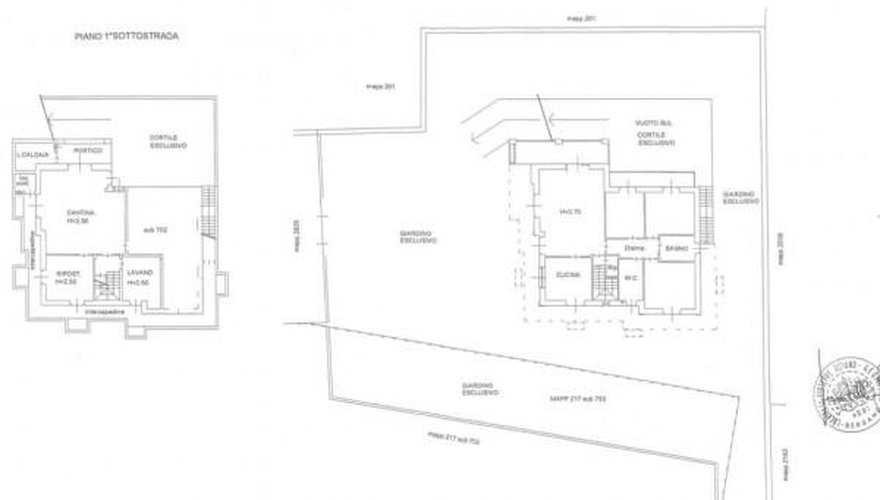
Possibilita' di ritiro permute! zona centrale, a due passi da scuole e da tutti i servizi, esclusiva villa singola su piano unico circondata da 1500 mq di giardino privato. Abitazione di oltre 400 mq composta al piano terra da: ingresso, doppio soggiorno con camino e vetrate sulla veranda, ampia cucina abitabile, tre camere da letto e doppi servizi; al piano seminterrato la taverna con camino in muratura, una camera/studio, un altra cucina, un bagno/lavanderia, il locale caldaia e un intercapedine piastrellata che circonda tutto il piano. Tripla autorimessa con doppia basculante automatizzata. Impianti e isolamenti di nuova generazione in classe energetica b, quali la caldaia a condensazione, il riscaldamento a pavimento a zone e i pannelli solari termici. Dispone inoltre di: filodiffusione, predisposizioni climatizzazione e antifurto, botola di accesso con scala retrattile per il sottotetto e giardino terrapieno gia' piantumato. V.d.p. Classe b. Per info e visite: andrea colombelli - rea n. Bg-411943 tel. 035.79.29.22 - mobile 339.43.15.769 - e-mail: [email protected] house & company 360 di colombelli a. - affiliato gabetti franchising agency di calusco d' adda (bg) vieni a trovarci! siamo in via g. Marconi n. 551. Visita il nostro sito! www.gabetti.it o seguici su: facebook @gabetticaluscodadda e instagram @gabetti_caluscodadda!

 

Dettagli

Tipologia
Villa
Mq
200
Soffitta
No
Bagni
3
Balconi
2
Box
2
Arredamento
Non disponibile
Spese cond.
-
Num.posti auto
0
Piano
0
Camere da letto
3
Giardino
Si, Privato
Ascensore
No
Riscaldamento
Autonomo
Locali
7
Tipo proprietà
Intera proprietà
Stato
Nuovo
Vendita/affitto
Vendita
Terrazzo
Si
Cucina
Abitabile
N.Piani Edificio
1
Portineria
No
Classe Energetica
B
IPE
45,0 kW/mq

HOUSE & COMPANY 360 DI COLOMBELLI ANDREA

Email: [email protected] - Telefono: 035792922

Indirizzo

Calusco d'Adda, via G. Marconi

Fax

035.79.28.91

Sito Web

HOUSE & COMPANY 360 DI COLOMBELLI ANDREA

Orari di apertura

Da lunedì a venerdì 9.00 - 12.00 / 14.30 - 19.00 / Sabato su appuntamento

1ALTRIANNUNCISIMILI

chicercacasa
quilatrova