Vendita Villa Romano Di Lombardia | Chicercacasa.it
TRILOCALE IN VILLA CON FINITURE A SCELTA

130.000

Vendita Villa Romano Di Lombardia

via Fratelli Cairoli, Romano di Lombardia

Descrizione

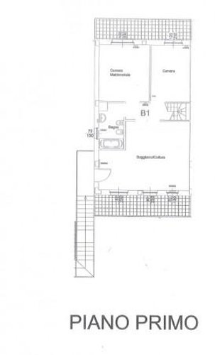
Occasione irripetibile!! proponiamo in vendita a romano di lombardia, in zona cappuccini, appartamenti trilocali in villa posti al piano primo, nuovi e mai abitati a prezzi d'usato! ogni appartamento è servito da un ingresso pedonale indipendente ed un' autorimessa inclusa nel prezzo. Le finiture interne verranno scelte direttamente dall'acquirente sulla base dei propri gusti, avendo come riferimento un capitolato fornito dall'impresa venditrice. Perfetto per chi ha bisogno di spazio! composizione: ingresso pedonale indipendente al piano terra,scala esterna privata per il piano primo, ingresso sul soggiorno e sulla cucina a vista con balcone, disimpegno notte, bagno, due camere da letto con balcone, ripostiglio. Collegamento diretto nella proprietà al piano seminterrato con un'autorimessa doppia in lunghezza. Disponibili anche appartamenti trilocali senza mansarda al piano terra, con dei giardinetti privati. Appartamenti davvero interessanti con prezzi unici per il loro genere! non aspettare che sia troppo tardi! fissa un appuntamento senza impegno chiamando il numero 346-5727729 mirko geom. Brevi un' esclusiva dell' agenzia immobiliare vendoaffittopermuto di romano di lombardia via nazario sauro 6b le metrature riportate nell'annuncio sono commerciali il tutto salvo errori e/o omissioni. Le fotografie, le misure e le descrizioni del presente annuncio sono puramente indicative e pertanto non costituiscono vincolo contrattuale. Per ulteriori informazioni ci trovi nelle sedi di : -palazzolo sull'oglio (bs) via matteotti 22; - martinengo (bg) largo fratelli sporchia 7/8; - romano di lombardia (bg) via nazario sauro 6/b; - chiari (bs) via cortezzano 61; - palosco (bg) viale papa giovanni xxiii 33: per informazioni telefoniche contattateci al numero 0363/903871

 

Dettagli

Tipologia
Villa
Mq
75
Soffitta
No
Bagni
2
Balconi
0
Box
2
Arredamento
Non disponibile
Spese cond.
-
Num.posti auto
0
Piano
1
Camere da letto
2
Giardino
Si, Privato
Ascensore
No
Riscaldamento
Autonomo
Locali
3
Tipo proprietà
Intera proprietà
Stato
Nuovo
Vendita/affitto
Vendita
Terrazzo
No
Cucina
A vista
N.Piani Edificio
2
Portineria
No
Classe Energetica
B
IPE
175,0 kW/mq

vendoaffittopermuto.it

Email: [email protected] - Telefono: +390363903871

Indirizzo

Romano di Lombardia, via Nazario Sauro

Sito Web

vendoaffittopermuto.it

Chi sceglie di affidarsi al sito vendoaffittopermuto.it per vendere, comprare, permutare o affittare un immobile potrà contare su un’esperienza ultradecennale dei tre soci fondatori: infatti il Rag. Cappelletti fin dal 2000 svolge l’attività di agente immobiliare presso lo Studiocasa Palosco di cui attualmente è responsabile; il Geom. Volpi dal 2007 è agente immobiliare presso lo Studiocasa e per ben tre anni consecutivi (2010-2011-2012) si è posto tra i primi cinque venditori del gruppo Studiocasa composto da oltre 350 venditori; il Rag. Murdolo in attività fin dal 2008 è tra i più giovani agenti immobiliari nella provincia di Bergamo in possesso di regolare patentino per lo svolgimento dell’attività di mediatore immobiliare. Nel mercato immobiliare contano i numeri e le emozioni, aspetti dei quali noi confidiamo di conoscerne i segreti, tale convinzione nasce dalla soddisfazione di oltre tremila clienti ancora attualmente in contatto con noi.

Orari di apertura

9.00-12.30 15.00-19.30

3ALTRIANNUNCISIMILI

147.000

Cividate al Piano

 

Oasi Sull'ogl...

Splendida casa in cortile con vista panoramica sul santuario e fiume Oglio! Composta da due appartamenti e senza spese di condominio è così

mq. 291 locali 4

vendoaffittopermuto.it

140.000

Cividate al Piano

 

Soluzione Ric...

In zona residenziale nuova e ben definita proponiamo ampio appartamento quadrilocale in villa ubicato all’interno di un contesto immobiliare

mq. 125 locali 4

vendoaffittopermuto.it

140.000

Cividate al Piano

 

Soluzione Ric...

In zona residenziale nuova e ben definita proponiamo ampio appartamento quadrilocale in villa ubicato all’interno di un contesto immobiliare

mq. 125 locali 4

vendoaffittopermuto.it

chicercacasa
quilatrova